• 7430阅读
  • 37回复

[装修日记]【第十一届“晋达建材杯”装修日记大赛】紫荆樾府装修日记 11.7更新 水电开槽 [复制链接]

上一主题 下一主题
离线和域装饰
 

发帖
93
奖学金
127
威望
307
微信分享到朋友圈 图酷模式 只看楼主 倒序阅读 腔主  发表于: 2020-10-27
马上注册,结交更多好友,享用更多功能,让你轻松玩转义乌十八腔,更多精彩评论请登录后查看。
  已有账号?点击登录
关闭
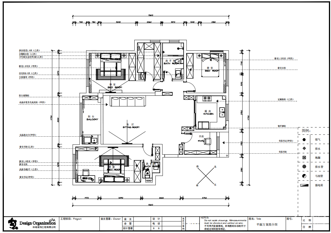
【户型】:四室两厅一厨三卫,原始户型
【建筑面积】:136
【开工日期】:2020年10月27日
【预算】:17万
【装修公司】:和域装饰
【包工方式】:全包
【装修风格】:简约
【设计师】:章阳
电梯直接:10.30敲墙以及清运
               11.01基材进场
              11.05砌墙
              11.07水电开槽挖孔
业主要求:业主喜欢清爽一点,所以要求客厅空一点(业主要求餐桌什么的都不要设计进去),而且为了宝宝着想,凡是能做平的地方,全进行做平处理,最后还把原先卫生间的区域改成了衣帽间。期待业主完工的样子


















5条评分威望+5
草莓皇后 威望 +1 - 2020-11-22
语洛 威望 +1 - 2020-10-28
凑你自己 威望 +1 - 2020-10-28
糖粿钕孜 威望 +1 - 2020-10-27
龚齐 威望 +1 - 2020-10-27
特别声明:帖子及回帖全部内容为论坛用户自行上传发布并承担相应的法律责任,不代表本网站观点和立场,本网站仅提供信息存储服务。任何用户如认为页面上的特定内容涉及侵权,可通过页面底部侵权投诉指引向我们进行投诉。
本帖共有37条回复,请登录后查看。
  已有账号?点击登录
快速回复
限100 字节
如果您提交过一次失败了,可以用”恢复数据”来恢复帖子内容