• 5618阅读
  • 16回复

[装修日记]【第十一届“晋达建材杯”装修日记大赛】凯悦公馆,让租客身在异乡也可以有家的感觉11月18日水电材料进场 [复制链接]

上一主题 下一主题
离线和域装饰
 

发帖
93
奖学金
127
威望
307
微信分享到朋友圈 图酷模式 只看楼主 倒序阅读 腔主  发表于: 2020-11-09
马上注册,结交更多好友,享用更多功能,让你轻松玩转义乌十八腔,更多精彩评论请登录后查看。
  已有账号?点击登录
关闭
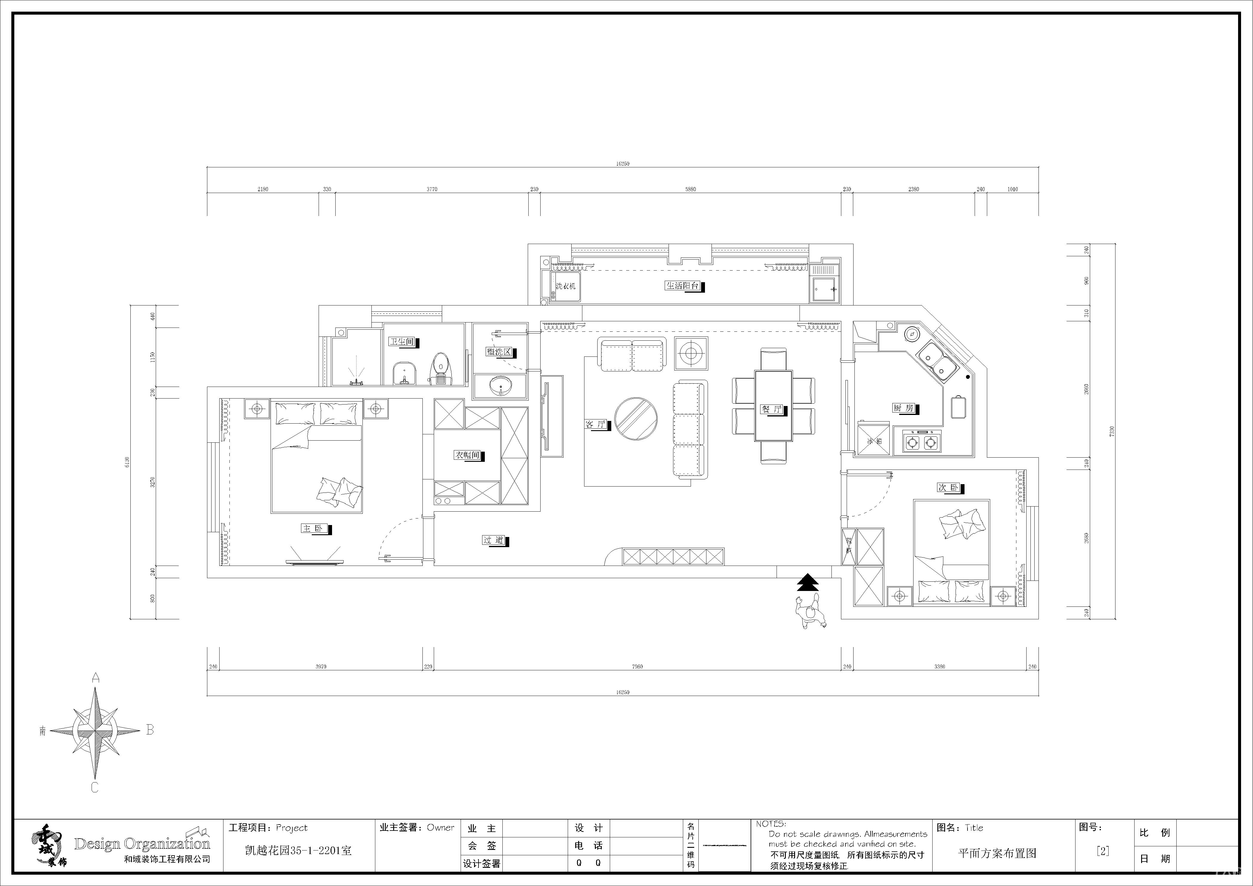
【户型】:两室一厅一厨一卫一阳台
【建筑面积】:90
【开工日期】:2020年11月7日
【预算】:20万
【装修公司】:和域装饰
【包工方式】:全案
【装修风格】:现代简约
【设计师】:朱双双

义乌,是一个拥有着数量很大的外来人口的城市,而外来人口从某种意义上也撑起了义乌的半边天。
这是一套坐落在义乌跟东阳交界处的精装出租房
房屋装修以现代简约,清爽的装修风格为主,尽量极大的满足大部分租客的审美需求。虽然是出租房,但业主跟我们沟通方案时说的最多的一句话是就是,一定要做的环保舒适,人家也是拿来住的。
最终,我们把客厅跟阳台之间的墙体做了拆除,让客厅有更好的采光跟通风。大概是每个女人都会希望自己拥有一个独立的衣帽间,为了满足这个需求,我们把原先卫生间的位置改到了隔壁的小阳台,卫生间的位置做了一个独立的衣帽间,大大的提高了房子的舒适度。
让租客即使身在异乡也可以有家的感觉











3条评分威望+3
草莓皇后 威望 +1 - 2020-11-22
ywhlqq 威望 +1 - 2020-11-10
福田首富 威望 +1 - 2020-11-10
特别声明:帖子及回帖全部内容为论坛用户自行上传发布并承担相应的法律责任,不代表本网站观点和立场,本网站仅提供信息存储服务。任何用户如认为页面上的特定内容涉及侵权,可通过页面底部侵权投诉指引向我们进行投诉。
本帖共有16条回复,请登录后查看。
  已有账号?点击登录
快速回复
限100 字节
如果您提交过一次失败了,可以用”恢复数据”来恢复帖子内容