• 3915阅读
  • 0回复

[装修学院]70㎡小户型开挂改造,将空间利用到极致! [复制链接]

上一主题 下一主题
 
发帖
56
奖学金
111
威望
320
微信分享到朋友圈 图酷模式 只看楼主 倒序阅读 腔主  发表于: 2020-11-27
马上注册,结交更多好友,享用更多功能,让你轻松玩转义乌十八腔,更多精彩评论请登录后查看。
  已有账号?点击登录
关闭
这间70㎡的精装小户型,
在改造前除了每个空间窄小外,
精装修的风格也透着股老气。
而屋主作为新时代青年,
是万万忍受不了这种装修风格的,
考虑后决定把精装房砸成毛坯再重装。



▲改造前
户型:两室两厅
面积:70㎡

▲原始房型
改造提示:
1、厨房和餐厅的面积较小,
餐厅采光差,
需要打造开放式厨房和有自然光的餐厅。
2、需要强大的收纳功能。
3、需要独立客房,
满足父母好友偶尔过来留宿。

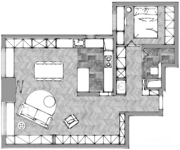
▲改造后平面布局图
改造重点:
1、打掉主卧与客厅、厨房之间的墙,
改造为客餐厨一体,使空间更加通透宽敞;
2、移动次卧门洞、调整卫生间大小,
走廊区域增加独立洗衣与收纳功能。
3、干湿分离。
4、储物功能分区管理,
客厅区域收纳大件日杂,
走廊区域作为清洁收纳。
▲临时居住模式
采用“轨道玻璃隔断门”和“折叠门”,
客厅一秒变客卧,
满足了房主的一大需求,
并且折叠门处有投影幕布,
可当做窗帘使用。
玄关面积小,但麻雀虽小五脏俱全,
设计师巧妙的利用了空间,
打造出一面功能齐全的通顶柜,
小小的玄关囊括了鞋柜+换鞋凳+挂钩+穿衣镜,
实用性超强。

玄关往里走,
放眼望去便被家里浪漫的色彩搭配所吸引,
浅灰+深蓝+脏粉,
搭配墙上极其富有艺术气息的装饰画,
高级感扑面而来。
厨房与客厅之间的墙面打通,
做了嵌入式展架,
巧妙地设计,
接通了厨房和客厅区域,
既增加了互动性和实用性,
又提升了美观,一举多得~
隔断墙的脏粉与餐厨区域的深蓝形成强烈的对比。
墙上增添置物架做了展示墙,
提高了空间利用率,
可以摆放些收藏品,
突显屋主的品味。
展示墙往里便是厨餐厅一体的空间。


屋主对厨房的要求比较高,
所以厨房的空间及功能要能满足她发挥十八般厨艺。
拆掉主卧与客厅、厨房之间的墙,
改造为客餐厨一体,
使空间无比宽敞通透。
这看上去是只有70平的小户型吗?
餐厅整体以蓝色+白色为主,
搭配原木柜台和木地板,
透着一股清新自然的味道~大大的窗户,
带来极好的采光。
这样一间明亮宽敞的厨房,
做菜的心情都变好啦!
餐椅特意选用了样式、
材质不一的6把椅子,
颜值高又增添了趣味性。

厨房旁边设计了具有强大收纳功能的柜体,
烤箱及冰箱均内嵌至柜体内,
不会占用厨房的面积。
台面下安置了内嵌洗碗机,
一排吊柜提供了充足收纳空间,
吊柜下面设计的开放式展架可用于收纳杯子和餐具等用品,
非常实用。
餐厅的飘窗,延续了厨房的深蓝色,
搭配大理石台面,
妥妥的网红拍照打卡点,
对于爱美食的屋主来说,
在上面拍摄料理图是再好不过了。
厨房背景区域采用纯白六角砖,
提升了整个空间的亮度,
看上去干净整洁。
高低台面的小心机设计,
在实际操作上带来了许多便利~
厨房和客厅的隔断墙上设计了两个壁龛,
用来放置瓶瓶罐罐,不放过一处可以利用的空间。
增设操作台,方便屋主做烘焙,
台面下靠厨房一侧的柜体可用作收纳。
靠近餐厅一侧的柜体做了开放式的展示柜,
摆放上好看的餐具,提升精致感。
吧台插座选择了升降插座,
不用时直接收到吧台底下,
保持台面的干净整齐,
想得太周到了。
客餐厨一体,
使得全屋的采光更佳,
空间更开阔。
为了空间改造,
基本砸掉了所有的非承重墙,
效果出奇的好。
客厅的“背景墙”延续了墙体的浅灰色,
看上去是背景墙,
实际是个收纳功能十分强大的储物柜,
柜体无脚线,
无把手,
保证了空间的整体性。
客厅无主灯,采用筒灯照明,
客厅面积较小,
在家具选择上以简约为主,
简约白色圆几+圆形藤编地毯,
给空间增添了一丝温暖的感觉。
与家里的风格相呼应的深蓝色天鹅绒沙发,精致优雅。
大大的飘窗配上深灰
白纱窗帘无比温馨,
搭配蓝色背景墙,令人心旷神怡。
卧室空间逼仄,
但屋主又想把办公桌和斗柜设置在这里。
考虑到空间的局促,
设计师索性把卧室地面抬高10cm,
全屋布置地台后直接放上床垫,
省去了床架占用的空间。
木地板上墙,
用最省空间的做法做了床头。
靠墙设置了一排平开门通顶柜,
用来收纳衣物,
基本满足了卧室的各项需求。
床的另一侧区域设计成屋主想要的办公区。
桌子和床之间刚好放下一个小斗柜,
可以当做床头柜使用,
空间利用到极致。
卫生间缩小后,把洗手台外移,
实现了干湿分离,更加便于小户型的使用。
屋主家卫生间的空间利用也是小户型的典范。
嵌入式马桶+隐藏式水箱,
水箱上方壁龛用木板隔开,
提高了卫生间收纳能力,
淋浴区也采用了壁龛式收纳,
尽量不占用空间。

走廊对于小户型来说也是不可浪费的区域。
设计师通过移动卧室门洞位置,
以及精准计算卫生间必要空间后,
微移了卫生间靠近走廊的一面墙。
调整完后,竟多出了一个洗衣区。
卧室和卫生间都安装了折叠门,
把门的占位也尽量缩小。
设计上把每一寸空间的利用率都提高到最大。
走廊一侧布置了洗手台+储物柜+内嵌洗衣机&烘干机。
对于小户型来说拥有个独立的洗衣区,
是多么好的事。
2条评分威望+2
绵绵熊 威望 +1 - 2020-12-07
ttaa1 威望 +1 - 2020-11-27
特别声明:帖子及回帖全部内容为论坛用户自行上传发布并承担相应的法律责任,不代表本网站观点和立场,本网站仅提供信息存储服务。任何用户如认为页面上的特定内容涉及侵权,可通过页面底部侵权投诉指引向我们进行投诉。
本帖共有0条回复,请登录后查看。
  已有账号?点击登录
快速回复
限100 字节
如果您提交过一次失败了,可以用”恢复数据”来恢复帖子内容