• 2582阅读
  • 11回复

[义乌楼市]【看房团】福田市场核心、配套成熟、交通便利…十八腔都会文澜看房团招募中! [复制链接]

上一主题 下一主题
离线网站十五
 

发帖
8440
奖学金
12021
威望
65054
微信分享到朋友圈 图酷模式 只看楼主 倒序阅读 腔主  发表于: 2020-12-09
马上注册,结交更多好友,享用更多功能,让你轻松玩转义乌十八腔,更多精彩评论请登录后查看。
  已有账号?点击登录
关闭

2020年义乌的房地产市场,吸引了众多开发商陆续进入,带来了各有规模、特点的优质楼盘,准备买房的你有没有挑花眼呢?孤身一人买房是不是感觉势单力薄?
买房路上的贴心自家人,本年度的最后一场看房团启动了!这一次咱们要去考察的是由国深&商城联合开发楼盘——都会文澜

毗邻市场、配套成熟、出行便利
是商贸城不可多得的优质楼盘!
让我们一起来了解一下吧!


板块潜力
都会文澜地处国际商贸城板块,拥有小商品城集团等上市公司20余家,已形成国际、国内高端办公人群聚集地。除国际商贸城之外,板块内还包含CDB商务中心,五星级酒店等现代化产业。

国际商贸城板块作为整个义乌市发展的动力引擎,城市的名片国际商贸城板块已经成为义乌最热门、资源禀赋最好的的板块。必将成为区域经济核心,义乌的未来!对标上海的路家嘴,杭州的钱江新城,板块潜力大。



交通网络
西侧为国贸大道并设有上下路口,是联系起义亭、苏溪大陈的重要通道。通过稠州北路、工人北路便可快速直达义乌老城区。大通路、诚信大道直通廿三里。密集路网可快速的前往义乌东西南北的各个区域,通勤时间快速高效。

在建中的轻轨站—商贸城站距离项目直线距离约2公里,预计2021年运营,将拉近义乌与周边城市时间和空间的距离。此外远期规划轨道1号线延伸段在项目北侧宗塘村附近设有站点。



商业配套
东侧有交旅集团打造的欧洲风情商业街,往南有集办公、休闲、娱乐、购物为一体的城市综合体鼎富广场,还有集公寓、商务、餐饮、购物、停车、办公等为一体的综合性商服项目恒风旅游商务大厦。往西还有江村安置房项目配套的商业综合体。

距离项目约2.5公里的新光汇商业综合体,汇集了购物、餐饮、娱乐、休闲等多种业态,这些都将是周末带家人或朋友聚餐,购物,看电影好去处。同时项目配备1.2万方沿街商业,足不出户就可满足日常生活所需。



景观资源
离项目约1.5公里的幸福湖湿地公园,打造成一个集有机农场生产、水利生态、文化休闲、运动康体,生态体验于一体的生态公园。距离项目约2.5公里的福田湿地公园,是一个天然氧吧和休闲胜地。



教育医疗
自带一所8班制的幼儿园,西面一路之隔就是义乌福田小学湖塘校区福田二幼。项目南面规划有福田中学,规模48个班,东侧办学规模为36个班的福田二小已开工建设。

医疗配套
直线距离3公里范围内分布有浙医四院(三甲医院),以及在6月28日投入使用的浙大四院医共体福田院区。



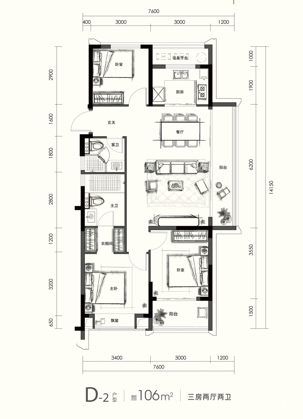
首开户型
首开户型建面约98㎡和106㎡,能够灵活适配绝大多数二口、三口之家。

建面约98㎡的C1户型,方正、南向三开间、大阳台。

入门左手即是厨房,与餐厅融合而又相互独立,动线简洁,备餐就餐方便;且空间区域比较大,可以同时容纳4-6人同时共餐。

户型设计中,约9.8米的南向超大面宽,包含一个约6.5米的双开间阳台,让次卧与客厅都能阳光满溢。主卧更是配置一个飘窗,保证收获极佳的光照面。


约98㎡实景样板房

建面约106㎡的D2户型,则将双阳台、三面采光的通透感做到了一个新的高度。

首先入眼的就是朝北的第三房,窗户的面积很大,采光明亮,可以做多种用途,老人房、书房、客房……形成主、客卧分区的格局,在保留主人居住私密感的同时,又留有客人充足的活动空间。

面东则有约6.2米大阳台,直通餐客纵厅,将生活空间与景观空间无缝衔接。

南向次卧则配备一个约3米的独立阳台,可供日常生活晾晒使用,也可设计为风格独特的第二景观阳台,灵活性十足。



106㎡实景样板房

了解了这么多,想要置业的你,想不想实地去看看呢?

为了满足购房者的需求,让购房者们在义乌置业更安心、更放心,十八腔房产将于12月19日组织都会文澜专场看房团,届时会有工作人员贴心陪同,从品牌到楼盘,从美学馆到样板间,详细带你走遍!

十八腔都会文澜看房团
活动时间:12月19日星期六 具体时间待定
有意向的朋友可以点击下方链接报名

友情提醒
1. 报名时请填写联系电话、姓名以便我们及时与您联系;
2. 报名成功后,将于看房前2-3日内电话与您确定集合时间地点及参加人数,请保证手机畅通;
3. 活动全程免费,请放心同行;
4.本次活动名额有限,请大家报名后积极参与。如有特殊情况不能参加,请提前至少1天跟小编联系。
5.若遇到下雨等恶劣天气。活动出现变动,会提前进行通知。


也可扫描关注房小白咨询
(备注:看房团)






特别声明:帖子及回帖全部内容为论坛用户自行上传发布并承担相应的法律责任,不代表本网站观点和立场,本网站仅提供信息存储服务。任何用户如认为页面上的特定内容涉及侵权,可通过页面底部侵权投诉指引向我们进行投诉。
本帖共有11条回复,请登录后查看。
  已有账号?点击登录
快速回复
限100 字节
如果您提交过一次失败了,可以用”恢复数据”来恢复帖子内容