在传统的古典园林设计中,人们造园的中心思想从未变过:实现人们心中憧憬的完美之地,即“天人合一”的美好意境。设计师以此思想为基础,通过对传统建筑美学的解构重塑,提取传统中式中源远流长的文化内涵和审美,与现代艺术潮流相结合,打造现代时尚的东方美学空间。
1F玄关
业主十分重视生活质感,喜爱中式风,追求简约大气的颜色搭配与造型。设计师在方案构思中“步步为营”,使用经典考究的材质,通过对称的布局和审慎的构图,呈现出大气的中式气场。
利用古典的中式圆窗设计,通过借景的手法,增加了空间的景深,可赏中式园林之美,也可观窗外四季变化之美。
1F客厅



在客厅设计中,设计师灵活地借用了“透景”的手法,通过减少墙体的阻碍和细节处理来打通空间的视觉感,中式家具与吊灯等软装元素的融入,让客厅更加通透大气的同时也回归了家的本质。



寓意美好的祥云与密缝铺贴的效果还原天然石材的美观大气,衍生出来的气势感巧妙地放大了空间,华美的云灯、金属质感的线框、高级灰大理石完美契合,整体视觉上落落大方。
1F书房


黑檀肌理紧密,打磨后形成的纹理非常漂亮,其造型吊顶给人一种神秘感,沉稳有内涵,低调而奢华,正符合了业主成功又成熟的气质。一方书房,一炉熏香,一盏清茶,在花香和墨香之中,涤净世间的浮躁,诗情画意中蕴藏着居住者对写意生活的无限追求。
1F过道



天花和地面的框线形成了天地呼应,天花弧形吊顶具有流水般的流动感,简约的线条如丝滑般流畅自然,墙面大理石随性自然的纹理成为空间温润的底色,烘托出中式的意境之美。
看似随意的搭配却是别具匠心,艺术感十足的花瓶插上一束苍翠,神奇繁复的大理石肌理,隐藏着奇妙魅力,玄关整体尽显诗意山水的趣致,带出庄重而华贵的感觉。
2F餐厅
设计师致力于构建生活与空间的相融,大气自然的建筑风格与中式传统文化完美结合,上圆下方的设计象征幸福稳健,宁静致远。仿古屋檐的造型同样引人注目,大块玻璃窗将自然景致引入室内,打造出奢华高雅的用餐环境。
2F书房


矮纸斜行闲作草,晴窗细乳戏分茶。书里芳华,清幽雅致,无论外界如何的喧嚣,进入书房宛如到了一片净土。精心挑选的软饰融入业主收藏的艺术作品,赋予整个空间更高层次的艺术氛围。
2F品茶区


品茶区以白色布艺搭配中式椅凳,带来更加舒适自然的视觉之美,泡一壶浓淡相宜的香茶,品茶香,观茶器,享受难得的自在静谧。
2F娱乐休闲室
为经常来访的亲友们打造了娱乐休闲室,高级黑白灰的配色继承了中国古典文化的底蕴与意境。在软硬、明暗与次序之间,透露出中式的极致审美追求。
2F过道


整个过道空间在简约中透着灵动、优雅的美,还原了中式园林的独特气质,将精美的石头景致嵌入生活空间,在呼吸之间仿佛将人带进“寄情山水”的自然之境里。
主卧室




主卧室强调将一切化繁为简,在造型基础上极致简约,搭配精巧的灯具、古典的隔断、雅致的器皿等,为居住其中的人们隔绝一切喧嚣杂念,回归最真实的恬淡心境。
大女儿房



极具生命力的中式元素应用在女儿房里,既有现代化的气息,又有传统中式的高雅大气,莫兰迪色系显出一种更柔和的感觉,安静优雅,空间里蕴含着诗意的想象力和光阴的故事。
小女儿房

小女儿房内点缀梦幻脏粉,与清新养眼的绿色系相衬,素雅的空间中释放着活泼的生命气息,温馨而又包容,温润的灯光暖暖地洒下来,明亮了青春时光。
儿子房




儿子房的设计元素更显沉稳端方,将书籍造型复刻在天花板上,寓意着对望子成龙的期待。墙面水墨山水的自然之美,深入骨的内敛个性赋予它独特的气场与格调,于无形之中成就不凡。
项目名称:万村楼中楼
项目地址:中国义乌
设计团队:周良艺术空间设计
主案设计:周良
参与设计:吴东,王鑫
软装设计:周良设计软装团队
项目施工:欧凯装饰公司
项目面积:766㎡
项目风格:中式风格
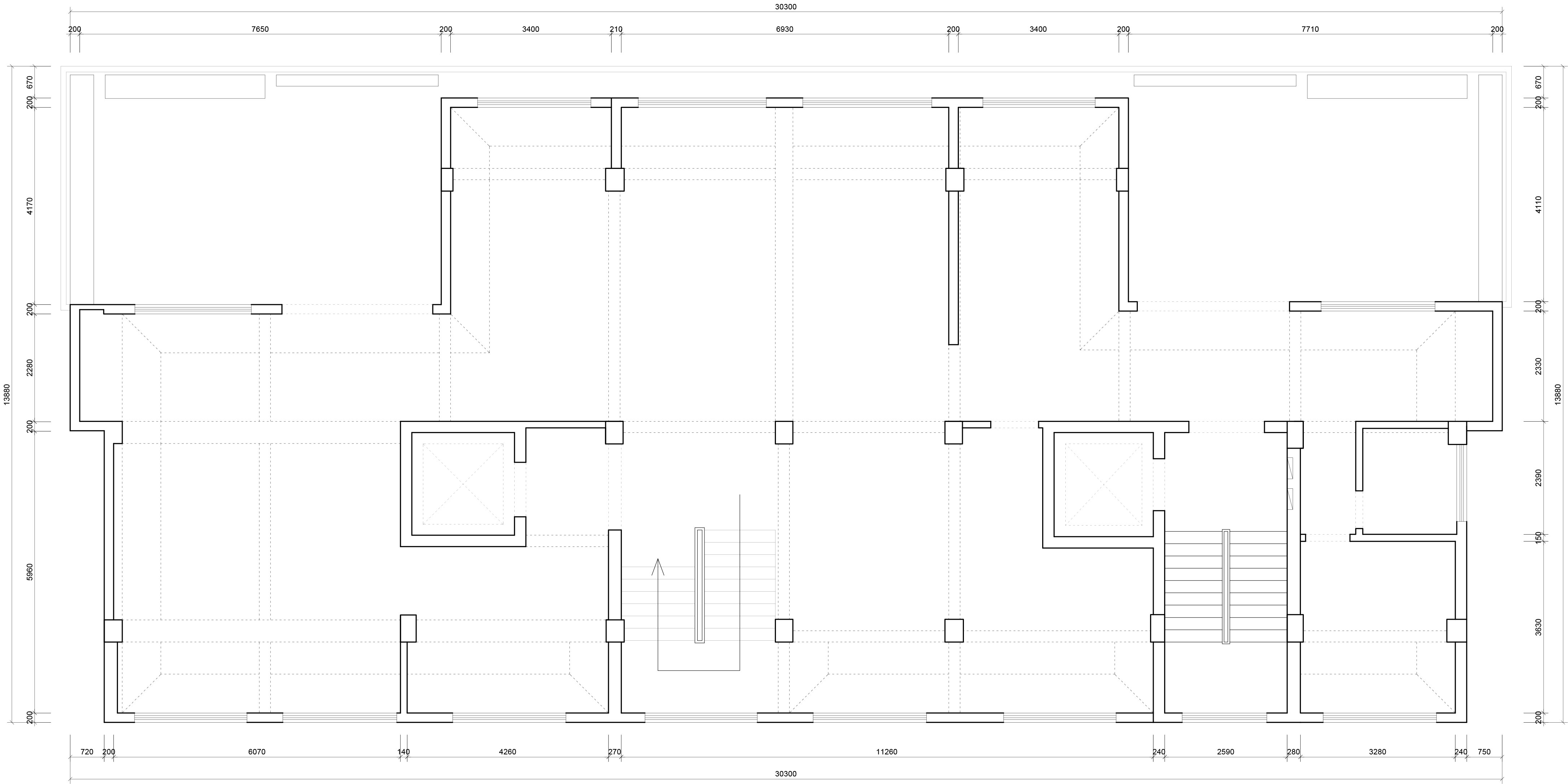
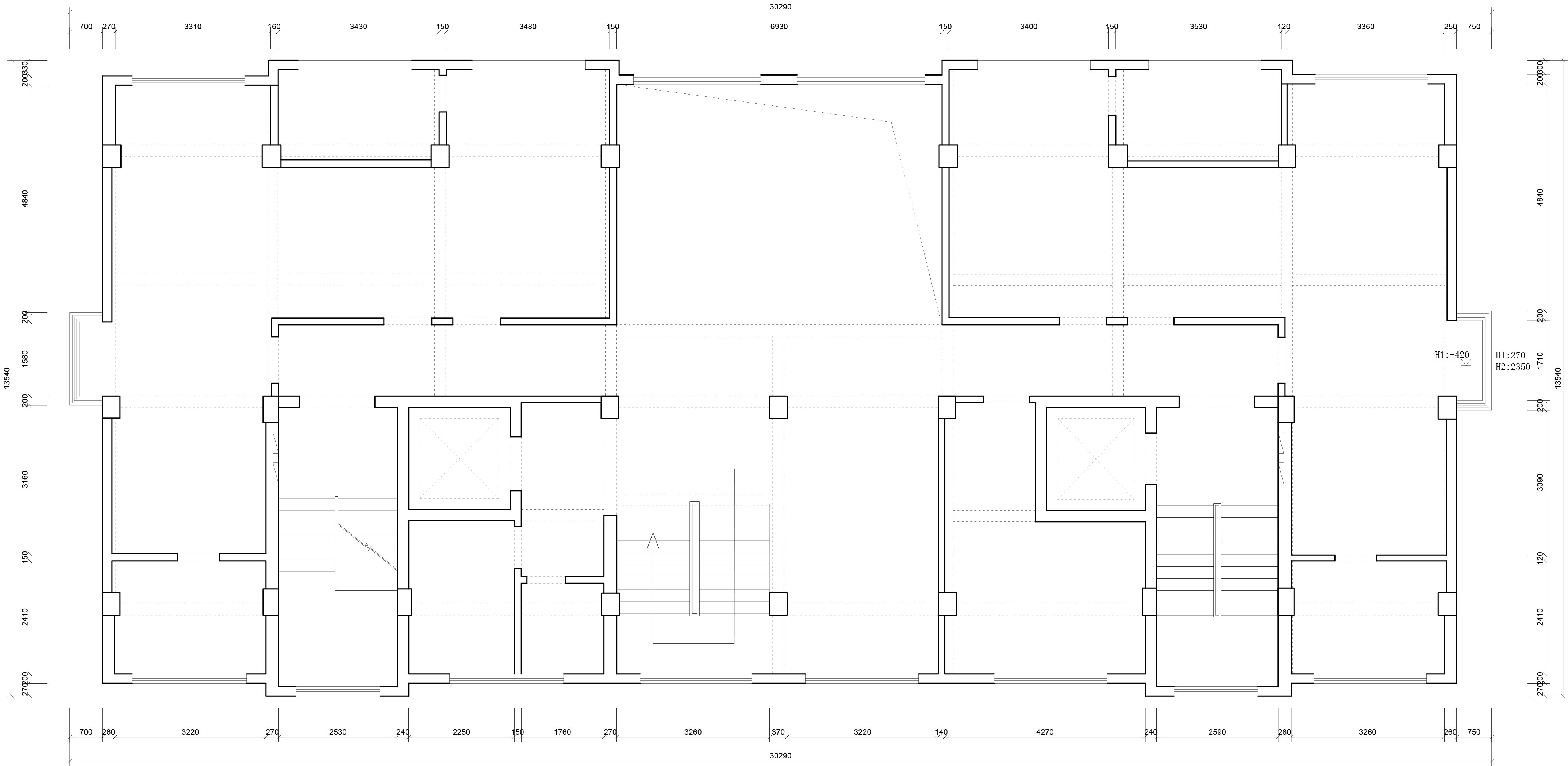
原始结构图
▲一层原始结构图
▲二层原始结构图
平面布置图
▲一层平面布置图
▲二层平面布置图
[ 此帖被周良设计在2020-12-22 18:59重新编辑 ]