设为首页
客户端
下载客户端
广告联系
登录
|
注册
下次自动登入
忘记密码?
社区服务
积分竞拍
道具中心
统计排行
基本信息
管理团队
管理统计
在线会员
会员排行
版块排行
帖子排行
帮助
个人中心
帖子
日志
用户
版块
帖子
搜 索
快捷通道
关闭
您还没有登录,快捷通道只有在登录后才能使用。
立即登录
还没有帐号? 赶紧
注册一个
全站首页
论坛
手机版
求职招聘
百姓话题
都市男女
乐活义乌
谈婚论嫁
口水楼市
装修大本营
亲子乐园
车友会
驴友户外
摄影
水墨江南
紫色梦幻
绿之印象
默认
黑色旋风
十八腔家裝
设计与报价
免费
效果图
找我家
找装修公司
选建材
装修攻略
看日记
学装修
资讯
家装论坛
装修日记
新帖
精华
>
装修大本营
>
【圣都装饰丨锦绣之城】户型解析 ..
发帖
回复
返回列表
新帖
7200
阅读
3
回复
[装修学院]
【圣都装饰丨锦绣之城】户型解析:130平现代轻奢风
[复制链接]
上一主题
下一主题
离线
网站二八
UID:3131969
注册时间
2016-12-01
最后登录
2025-10-09
发帖
1105
搜Ta的帖子
精华
2
奖学金
1520
威望
4418
打卡
2643天未打
访问TA的空间
加好友
用道具
论坛编辑
关闭
个人中心可以申请新版勋章哦
立即申请
知道了
发帖
1105
奖学金
1520
威望
4418
加关注
发消息
微信分享到朋友圈
打开微信扫一扫
如何扫描分享
只看楼主
倒序阅读
腔主
发表于: 2021-01-05
马上注册,结交更多好友,享用更多功能,让你轻松玩转义乌十八腔,更多精彩评论请登录后查看。
立即注册
已有账号?
点击登录
关闭
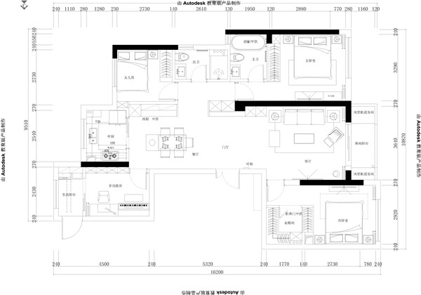
案例地址:
锦绣之城
案例面积:
130平
案例风格:
现代
装修公司:圣都装饰
设计师:朱吨吨
本案风格为当下流行的现代轻奢风,客厅整体采用暖色调,为空间提升亮度,沉稳又不失柔和。沙发的几处调色,简约丰盈,不拘泥,不压抑,层次分明,凸显整个空间的品质。吊灯迎合客厅主基调,两个圆环相绕的造型,简约时尚,灵动十足。餐厅的设计显艺术质感,光线在空间里穿行,插画为空间注入一份自然生机。
共
条评分
特别声明:帖子及回帖全部内容为论坛用户自行上传发布并承担相应的法律责任,不代表本网站观点和立场,本网站仅提供信息存储服务。任何用户如认为页面上的特定内容涉及侵权,可通过页面底部侵权投诉指引向我们进行投诉。
回复
举报
本帖共有3条回复,请登录后查看。
立即注册
已有账号?
点击登录
发帖
回复
返回列表
快速回复
限100 字节
如果您在写长篇帖子又不马上发表,建议存为草稿
您目前还是游客,请
登录
或
注册
进入高级模式
文字颜色
回复时多说几句,这会让你的发言更受关注!(我们提倡更有价值的回帖(*^_^*)……)
写好了,发布
回复后跳转到最后一页
美食
|
旅游
|
亲子
|
汽车
|
装修
|
摄影
隐藏
快速跳转
版块导航
百姓话题
都市男女
乐活义乌
亲子乐园
车友之家
口水楼市
装修大本营
谈婚论嫁
爱心公益
意见建议
关闭
关闭
选中
1
篇
全选
请选择如下方式登录十八腔
打开 十八腔手机APP - 消息 - 扫一扫
二维码已失效
点击刷新
>
扫描成功
关闭