• 7368阅读
  • 2回复

[装修学院]【LDD周良设计作品】至净——义乌自建房设计展示 [复制链接]

上一主题 下一主题
离线网站三五
 

发帖
1030
奖学金
1528
威望
5683
微信分享到朋友圈 只看楼主 倒序阅读 腔主  发表于: 2021-01-28
马上注册,结交更多好友,享用更多功能,让你轻松玩转义乌十八腔,更多精彩评论请登录后查看。
  已有账号?点击登录
关闭

“山光悦鸟性,潭影空人心。”
国人对居住生态的追求自古有之,众多流芳千古的诗与画,描绘出古代文人的山水情结。本案业主是中式传统文化爱好者,有较高的文化素养与雅致品味,又想要现代的简约与时尚,我们借意山水的细节,取其灵动优美之意,引入室内景观,与家具细节进行呼应,运用古人智慧,增添些许趣味。



项目名称:自建房
项目地址:中国义乌
设计团队:周良艺术空间设计
主案设计:周良
参与设计:吴东,王鑫
软装设计:周良设计软装团队
项目施工:欧凯装饰公司
项目面积:280㎡
项目风格:现代中式风格


1F客厅


业主喜爱收藏各类禅意摆件,设计师为它们一一找到合适的位置,徜徉一处幽胜之地,呈现出居住者寄情山水、超然世外的高洁情怀。



大理石与大板砖打造集内涵与颜值于一身的绝美背景墙,蜿蜒的枯枝活出了自在的姿态,像春天的雨,夏天的风。


实木桌椅经过匠心打磨之后光滑细腻,手感特别好,我们给茶几搭配了一些小物件,给木椅搭配了素雅的布艺抱枕,中和深棕色的老气,带来轻盈柔软的家居氛围。
1F餐厅


餐厅采用圆桌围坐的方式,将中式传统文化与现代时尚元素结合到一起,整体风格删繁就简,恰到好处的展现出中式餐厅的儒雅与闲适。黑檀屏风隔断保留了原木的自然纹理,展现出中式家居的层次之美。


墙壁挂画带着些许山水纹路,是大自然巧夺天工的精妙,流露着快意而洒脱的情怀,是意韵悠远的东方艺术。


餐边柜的格局设计错落有致,实现物品收纳的同时,自身也成为一道简而有度、实而不繁的风景线。
楼梯

沿着楼梯拾阶而上,大理石材高级通透,营造出浮空的视觉效果,正是曲径通幽处,别有洞天景。



楼梯下方暗藏“玄机”,迎客松盆景苍翠优雅,枯山水造景意境优美,给人一种安静祥和的美感,为整个空间增添了高雅的格调,独特的雅趣品味。
2F玄关


2F卧室


这里是一个暂离人间烟火的空间,远离繁杂的工作和尘嚣干扰,还自己一个独处的清静空间,自在而惬意,时光悠然,心亦悠然。


中式造型灯饰温暖而明媚,床头背景墙上的山水挂画尽显朦胧美感,整个空间古韵满满。选材上融合了现代人的生活习惯,帮助居住者很快的甜睡入梦。


卧室在色彩的使用上新颖大胆,“淡妆浓抹总相宜”,带来高级复古的精致感,温润的木饰面自带与俱来的自然气质,打造出随性、随心的质感氛围。
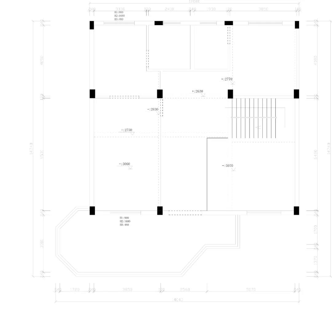
原始结构图

三层原始结构图

四层原始结构图

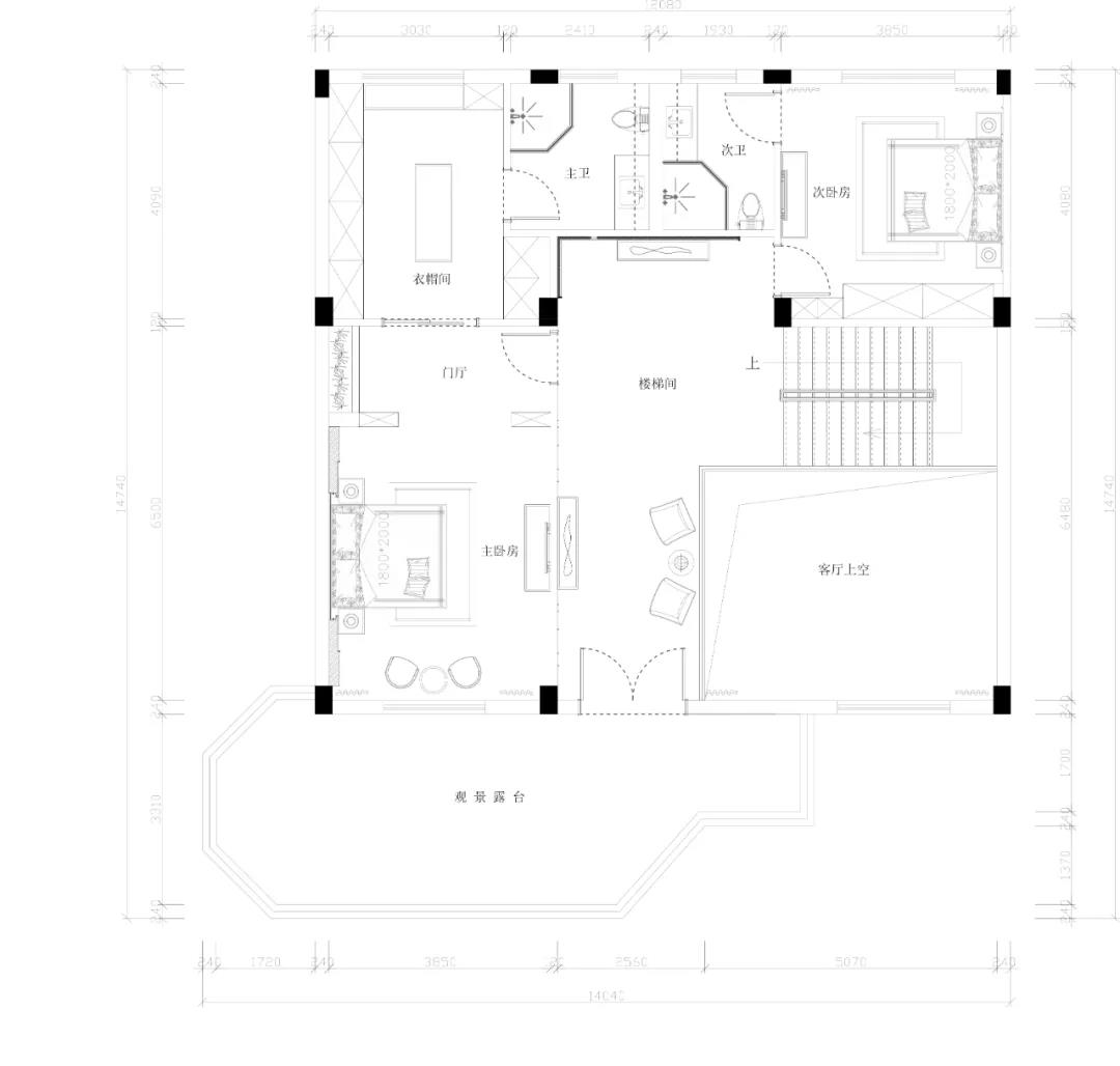
平面布置图

三层平面布置图

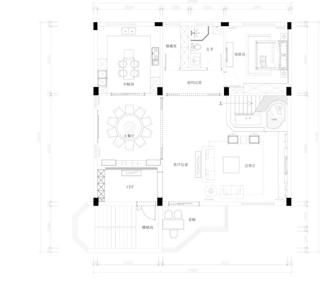
四层平面布置图

7条评分威望+7
柒柒12 威望 +1 - 2021-05-29
周良设计 威望 +1 - 2021-03-03
草莓皇后 威望 +1 - 2021-02-03
bignew 威望 +1 - 2021-01-28
语洛 威望 +1 - 2021-01-28
幸福小女人123 威望 +1 - 2021-01-28
龚齐 威望 +1 - 2021-01-28
特别声明:帖子及回帖全部内容为论坛用户自行上传发布并承担相应的法律责任,不代表本网站观点和立场,本网站仅提供信息存储服务。任何用户如认为页面上的特定内容涉及侵权,可通过页面底部侵权投诉指引向我们进行投诉。
本帖共有2条回复,请登录后查看。
  已有账号?点击登录
快速回复
限100 字节
如果您提交过一次失败了,可以用”恢复数据”来恢复帖子内容