设为首页
客户端
下载客户端
广告联系
登录
|
注册
下次自动登入
忘记密码?
社区服务
积分竞拍
道具中心
统计排行
基本信息
管理团队
管理统计
在线会员
会员排行
版块排行
帖子排行
帮助
个人中心
帖子
日志
用户
版块
帖子
搜 索
快捷通道
关闭
您还没有登录,快捷通道只有在登录后才能使用。
立即登录
还没有帐号? 赶紧
注册一个
全站首页
论坛
手机版
求职招聘
百姓话题
都市男女
乐活义乌
谈婚论嫁
口水楼市
装修大本营
亲子乐园
车友会
驴友户外
摄影
水墨江南
紫色梦幻
绿之印象
默认
黑色旋风
十八腔家裝
设计与报价
免费
效果图
找我家
找装修公司
选建材
装修攻略
看日记
学装修
资讯
家装论坛
装修日记
新帖
精华
>
装修大本营
>
【小编探工地】VR全景,带你走进 ..
发帖
回复
返回列表
新帖
936
阅读
0
回复
[装修学院]
【小编探工地】VR全景,带你走进斐梵装饰滨江壹品工地现场
[复制链接]
上一主题
下一主题
离线
网站三五
UID:3232170
注册时间
2018-03-05
最后登录
2025-01-23
发帖
1030
搜Ta的帖子
精华
5
奖学金
1528
威望
5683
打卡
2839天未打
访问TA的空间
加好友
用道具
论坛编辑
关闭
个人中心可以申请新版勋章哦
立即申请
知道了
发帖
1030
奖学金
1528
威望
5683
加关注
发消息
微信分享到朋友圈
打开微信扫一扫
如何扫描分享
只看楼主
倒序阅读
腔主
发表于: 2021-05-28
马上注册,结交更多好友,享用更多功能,让你轻松玩转义乌十八腔,更多精彩评论请登录后查看。
立即注册
已有账号?
点击登录
关闭
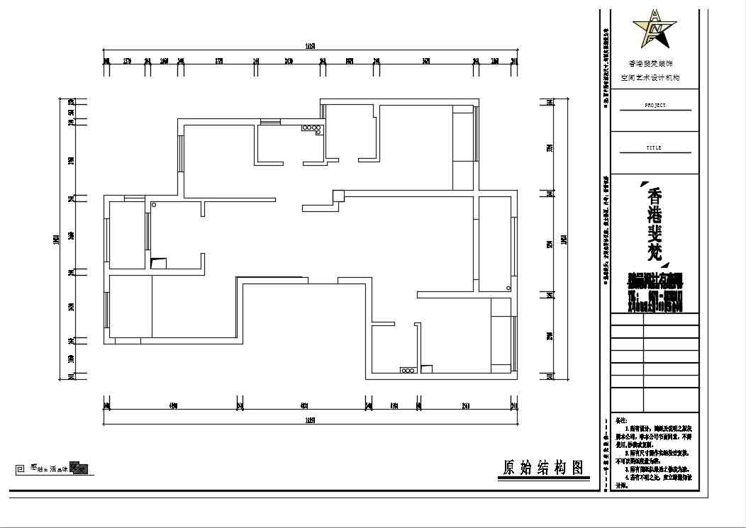
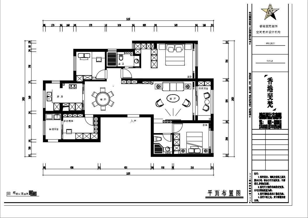
◆工地信息◆
所探楼盘:滨江壹品
装修公司:斐梵装饰
在建工地vr全景展示
本期我们前往的斐梵装饰的工地,已进入地暖铺设阶段,大家可以在全景中看到顶面的木工工艺展示,在龙骨垂直交叉点与度角处用木板固定,石膏板7字型或T字型进行封板。斐梵装饰同样使用的是
轻钢龙骨吊顶
,轻钢龙骨铺龙朵正角5mm以内,所有基层离地2cm以上;且轻钢龙骨主龙吊筋间距不超过0.8米,主龙不超过0.9米,辅龙间距30cm。背景墙铺设要求基础平整度不超过3mm,石膏板之间缝隙不小于3mm。
原始平面图
平面布置图
vr效果图全景展示
小编微信:jiaz18q
装修大小事,找小编呀!
共
条评分
特别声明:帖子及回帖全部内容为论坛用户自行上传发布并承担相应的法律责任,不代表本网站观点和立场,本网站仅提供信息存储服务。任何用户如认为页面上的特定内容涉及侵权,可通过页面底部侵权投诉指引向我们进行投诉。
回复
举报
本帖共有0条回复,请登录后查看。
立即注册
已有账号?
点击登录
发帖
回复
返回列表
快速回复
限100 字节
如果您提交过一次失败了,可以用”恢复数据”来恢复帖子内容
您目前还是游客,请
登录
或
注册
进入高级模式
文字颜色
回复时多说几句,这会让你的发言更受关注!(我们提倡更有价值的回帖(*^_^*)……)
写好了,发布
回复后跳转到最后一页
美食
|
旅游
|
亲子
|
汽车
|
装修
|
摄影
隐藏
快速跳转
版块导航
百姓话题
都市男女
乐活义乌
亲子乐园
车友之家
口水楼市
装修大本营
谈婚论嫁
爱心公益
意见建议
关闭
关闭
选中
1
篇
全选
请选择如下方式登录十八腔
打开 十八腔手机APP - 消息 - 扫一扫
二维码已失效
点击刷新
>
扫描成功
关闭