• 5605阅读
  • 24回复

[义乌楼市]投资约26亿,义乌西门老街历史文化开发项目将开建,以仿古建筑为主 [复制链接]

上一主题 下一主题
离线网站十五
 

发帖
8440
奖学金
12021
威望
65054
微信分享到朋友圈 图酷模式 只看楼主 倒序阅读 腔主  发表于: 2021-07-13
马上注册,结交更多好友,享用更多功能,让你轻松玩转义乌十八腔,更多精彩评论请登录后查看。
  已有账号?点击登录
关闭
7月12日,义乌西门老街历史文化开发项目(招标代理)招标公告发布,西门老街改造项目又有新进展。



本招标项目义乌西门老街历史文化开发项目已由相关部门批准,项目业主为义乌市交通旅游产业发展集团有限公司,建设资金为自筹。项目已具备招标条件,现对该项目的招标代理进行公开招标。

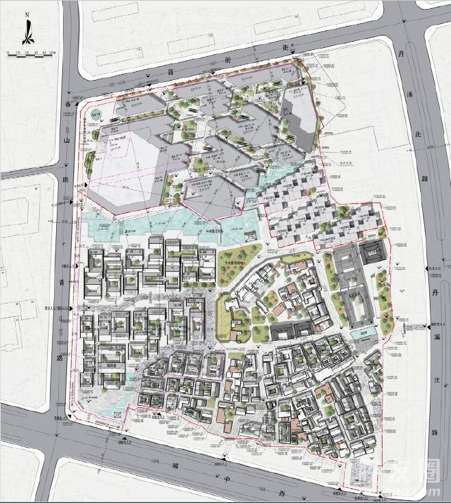
建设地点位于稠城街道,香山路东侧,县前街南侧,丹溪路西侧。


未拆除前

义乌西门老街历史文化开发项目范围为:东至丹溪北路,西至香山路,南至环城中路,北至县前街,区域总面积约200.95亩。项目初步规划建设规模约为26万平方米。其中地下建筑约8.93万平米,地上建筑以仿古建筑为主,建筑面积约16.79万平米,项目初步估算建安投资约26亿元。(以上工程概况规模以实际为准)。

通过本次招标择优选取一家造价咨询机构,完成本工程项目涉及的设计、监理、施工、跟踪审计、货物设备采购、各类相关服务等全过程的招标代理、工程量清单及招标控制价编制等工作。(具体以招标人书面通知为准)。


国贸大道与丹溪路交叉口南侧区块控规局部调整

在上个月,为加快国贸大道与丹溪路交叉口南侧区块更新改造,义乌自规局组织编制《国贸大道与丹溪路交叉口南侧区块控规局部调整》。

其中西门老街区块,将原规划4.61公顷的商业用地和9.10公顷的文物古迹用地,合并为1.5容积率的13.71公顷公共管理与公共服务设施用地/商业服务业设施用地。

在此前的2020年1月10日,义乌交旅集团以5.9亿元底价摘得西门北侧地块,原计划将建设内容将包括街坊式商业区、酒店、话剧与音乐剧场、美术馆等。


原西门老街保护开发项目日间效果图
原西门老街保护开发项目夜间效果图

西门老街保护开发项目总平面图




整理:义乌房子网
编辑:网站十五

加房小白微信
陪你畅谈义乌楼市、解决买房大小事




3条评分威望+3
了了了了了 威望 +1 - 2021-07-13
侬好萌 威望 +1 各个真奴十八力! 2021-07-13
细心的腔友 威望 +1 - 2021-07-13
特别声明:帖子及回帖全部内容为论坛用户自行上传发布并承担相应的法律责任,不代表本网站观点和立场,本网站仅提供信息存储服务。任何用户如认为页面上的特定内容涉及侵权,可通过页面底部侵权投诉指引向我们进行投诉。
本帖共有24条回复,请登录后查看。
  已有账号?点击登录
快速回复
限100 字节
如果您提交过一次失败了,可以用”恢复数据”来恢复帖子内容