• 5360阅读
  • 17回复

[义乌楼市]18.5亿元拿地,规划16幢高层,苏溪商城·嘉悦澜庭项目规划公示! [复制链接]

上一主题 下一主题
离线网站十五
 

发帖
8440
奖学金
12021
威望
65054
微信分享到朋友圈 图酷模式 只看楼主 倒序阅读 腔主  发表于: 2021-07-24
马上注册,结交更多好友,享用更多功能,让你轻松玩转义乌十八腔,更多精彩评论请登录后查看。
  已有账号?点击登录
关闭
7月23日,义乌市自然资源与规划局信息公开平台公布了多个楼盘项目规划公示,涉及商城·嘉悦澜庭、厚朴置业后宅地块等。

义乌高新区高塘路与好派路交叉口东北侧地块


申请人已委托设计单位按规划条件、相关规定、设计规范等编制规划设计方案,并经苏溪镇、经开区指挥部初步审查同意。根据相关规定要求,对该项目规划方案予以公示,公示期为2021年7月23日至2021年8月9日。

本项目位于苏溪镇高塘路与好派路交叉口东北侧,用地面积60011.74平方米,用地性质为商业、二类居住用地。由义乌锦华商博置业有限公司开发建设,推广名为商城·嘉悦澜庭。



规划总建筑面积216119.86㎡,其中地上建筑面积15万方,地下建筑面积6.6万方,建筑密度为25%,容积率2.5,绿地率30.05%,建筑高度61.9-69.9米。机动车位1700个(地上170地下1530),非机动车停车位2919

整个项目由16栋高层住宅和商业、配套用房组成,其中20层有8栋,22层有8栋主要分布于中央绿地周边及项目中列,楼房总体呈现中间十字凸起,沿四周缓降的布局方式。

小区出入口3个,分别位于高塘路、好派路和瑞丰光电侧,其中项目东西两侧出入口同时规划有机动车库出入口,并在瑞丰光电侧单独再设置1处车行出入口。在好派路侧规划有1处消防出入口。



3月8日,义乌商城房产以18.5亿元拿下该地块,成交楼面价12332.92元/㎡,溢价率17.8%。

福田街道城北路北侧下骆宅地块


申请人义乌市供销集团有限公司向本局提出申请,要求办理福田街道城北路北侧下骆宅地块建设工程规划许可手续。

申请人已委托设计单位按规划条件、相关规定、设计规范等编制规划设计方案,并经福田街道初步审查同意。根据相关规定要求,对该项目规划方案予以公示,公示期为2021年7月23日至2021年8月1日。


本项目位于苏溪镇高塘路与好派路交叉口东北侧,用地面积为8644.8㎡,用地性质为商务用地、城市道路用地。

规划总建筑面积22004.16㎡,其中地上建筑面积1.64,地下建筑面积5579,建筑密度为32.93%,容积率1.9,绿地率10.02%,机动车位165,非机动车停车位235

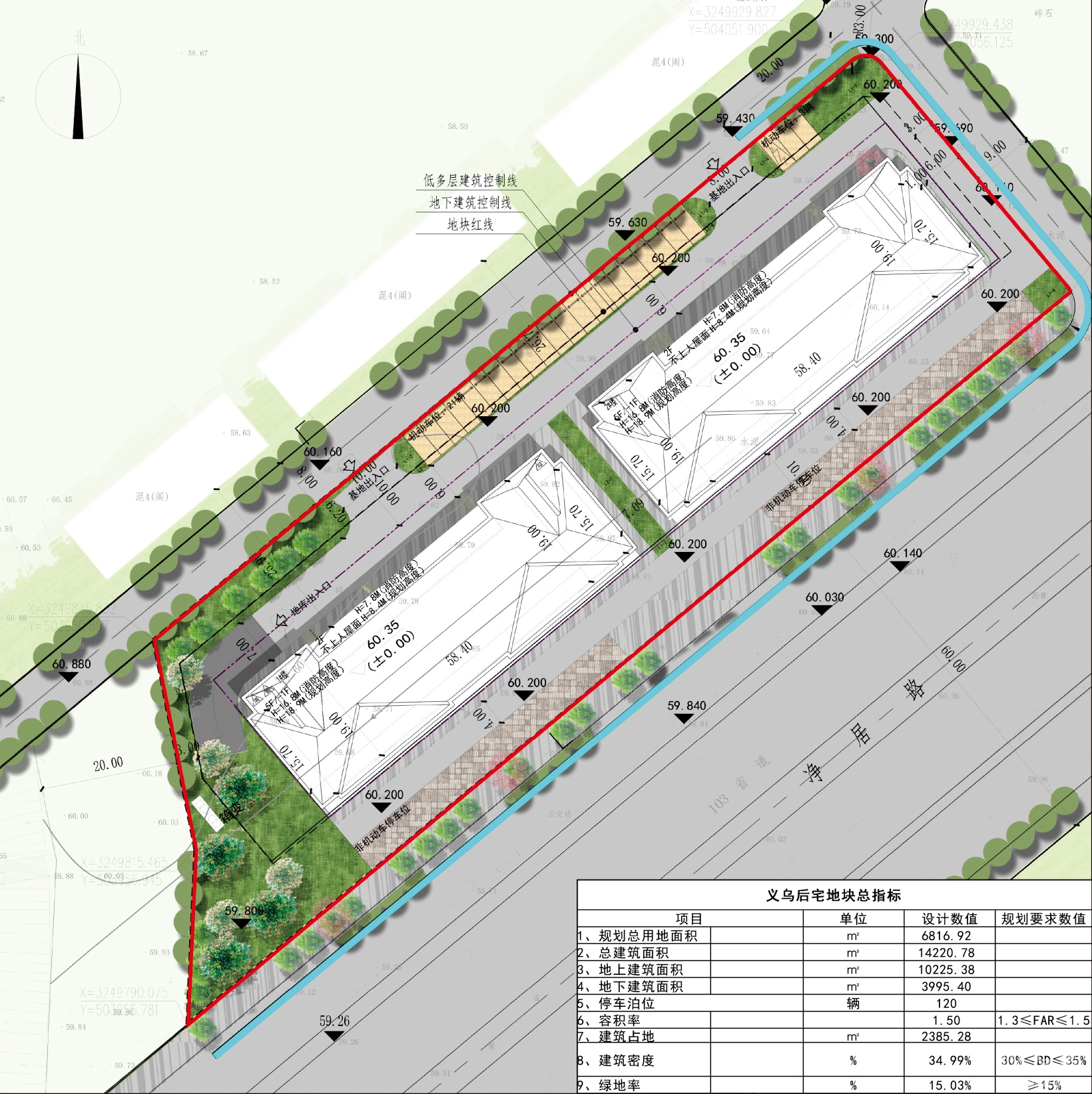
后宅街道宗泽北路西侧、净居路北侧2#地块


申请人义乌市后朴置业有限公司向本局提出申请,要求办理后宅街道宗泽北路西侧、净居路北侧2#地块建设工程规划许可手续。

申请人已委托设计单位按规划条件、相关规定、设计规范等编制规划设计方案,并经福田街道初步审查同意。根据相关规定要求,对该项目规划方案予以公示,公示期为2021年7月23日至2021年8月1日。



本项目位于后宅街道宗泽北路西侧、净居路北侧,用地面积为6816.92㎡,用地性质为商业、居住用地。

规划总建筑面积14220.78㎡,其中地上建筑面积10225.38,地下建筑面积3995.4,建筑密度为34.99%,容积率1.5,绿地率15.03%,停车泊位120辆




4月22日,金华市厚朴企业管理有限公司以1.38亿元拿下该地块,成交楼面价13512.46元/平方米,溢价率40.7%。该开发商已在义乌上溪开发项目有红星·天瑞。



效果图仅供参考,具体以批准为准

整理:义乌房子网
编辑:网站十五

加房小白微信
陪你畅谈义乌楼市、解决买房大小事




5条评分威望+5
徒步旅行走 威望 +1 - 2021-07-24
三分钟热度 威望 +1 - 2021-07-24
辉辉滔 威望 +1 各个真奴十八力! 2021-07-24
康大腿 威望 +1 - 2021-07-24
说好了不见面171 威望 +1 - 2021-07-24
特别声明:帖子及回帖全部内容为论坛用户自行上传发布并承担相应的法律责任,不代表本网站观点和立场,本网站仅提供信息存储服务。任何用户如认为页面上的特定内容涉及侵权,可通过页面底部侵权投诉指引向我们进行投诉。
本帖共有17条回复,请登录后查看。
  已有账号?点击登录
快速回复
限100 字节
如果您提交过一次失败了,可以用”恢复数据”来恢复帖子内容