• 8074阅读
  • 7回复

筑宅装饰【锦绣之城】现代轻奢 混搭风 [复制链接]

上一主题 下一主题
 
发帖
260
奖学金
486
威望
1144
微信分享到朋友圈 只看楼主 倒序阅读 腔主  发表于: 2021-08-15
马上注册,结交更多好友,享用更多功能,让你轻松玩转义乌十八腔,更多精彩评论请登录后查看。
  已有账号?点击登录
关闭
本案是一套现代轻奢+混搭装修案例,
筑宅首席设计师完成

轻奢,
是在现代风格黑白灰的冷峻中加入金色调和。
它比极致简约风格更注重品质和设计感,
向人们透露着生活本真的自然和纯粹。
它以高品质、设计感、
舒适、简约为风格特点。
摒弃传统的奢华风格,
回归生活本真,
家居空间给人时尚简约、
气质优雅且不失温馨舒适的感觉。


个人介绍:
  赵豪老师已从业10年有余
  毕业于同济大学室内艺术系
  进修于中国美术学院

获得荣誉:
  工程师职称
  中国室内设计师协会注册设计师
  2011年“茶花杯”最佳设计奖
  2013年诺贝尔杯全国
  设计师大赛优秀奖
  2014年亚太设计双年大奖赛
  商业空间优秀奖
  2017“设计+”全国青年设计师
  创新创客大赛入围奖
  2018年中国国际设计博览会
  10大创新设计人物奖等

设计理念:
  打破传统的装修理念,
  尊重业主的喜好


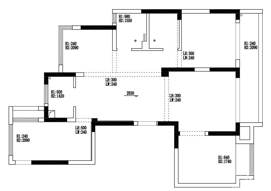
原始平面图


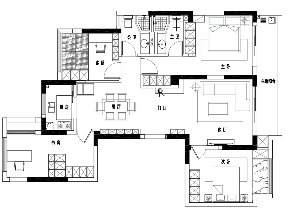
平面布置图

























效果图





特别声明:帖子及回帖全部内容为论坛用户自行上传发布并承担相应的法律责任,不代表本网站观点和立场,本网站仅提供信息存储服务。任何用户如认为页面上的特定内容涉及侵权,可通过页面底部侵权投诉指引向我们进行投诉。
本帖共有7条回复,请登录后查看。
  已有账号?点击登录
快速回复
限100 字节
如果您提交过一次失败了,可以用”恢复数据”来恢复帖子内容