• 4092阅读
  • 14回复

[义乌楼市]苏溪又一个新楼盘规划公示,布局10幢住宅+16班幼儿园+邻里中心集中商业 [复制链接]

上一主题 下一主题
离线网站十五
 

发帖
8440
奖学金
12021
威望
65054
微信分享到朋友圈 图酷模式 只看楼主 倒序阅读 腔主  发表于: 2021-09-04
马上注册,结交更多好友,享用更多功能,让你轻松玩转义乌十八腔,更多精彩评论请登录后查看。
  已有账号?点击登录
关闭

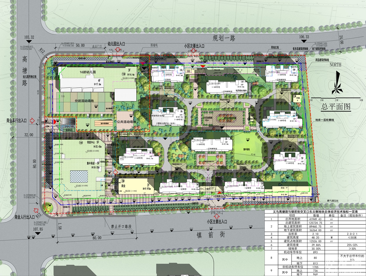
9月3日,苏溪镇高塘路与镇前街交叉口东北侧地块规划方案进行了公示。申请人已委托设计单位按规划条件、相关规定、设计规范等编制规划设计方案,并经苏溪镇政府初步审查同意。

根据相关规定要求,对该项目规划方案予以公示,公示期为2021年9月3日至2021年9月12日。

本项目位于苏溪镇高塘路与镇前街交叉口东北侧,用地性质为商业、二类居住、教育科研用地,地块由金华海瑞房地产开发有限公司开发建设。




地块规划用地面积41949.43㎡,总建筑面积125724.75㎡,其中地上建筑面积89460.75㎡,地下建筑面积36264.00㎡,容积率2.10,绿地率30%,建筑密度29.86%,机机车停车位893个,非机动车停车位1705个。

项目规划10栋住宅,其中2栋为11层(33.25米),2栋为14层住宅(41.7米),6栋为16层(47.7-47.9米)。整体呈现南低北高层层递进的布局,中央规划有集中绿地、文化活动场地、室外体育健身场地等。

16班幼儿园位于项目西北侧,建筑层高为3-4层,邻里中心和集中商业位于项目西南侧,建筑层高为5层。1-2层商业裙房则沿镇前街住宅底层设置。

住宅区主要出入口位于镇前街,次要出入口和幼儿园出入口位于项目北侧规划道路,高塘路侧设置有商业车行出入口和商业人行出入口。



6月23日,经过43轮出价,海伦堡最终以9.26亿元竞得该地块,成交楼面价10511.98元/平方米,溢价率30.2%。


整理:义乌房子网
编辑:网站十五

加房小白微信
陪你畅谈义乌楼市、解决买房大小事

3条评分威望+3
殿下村村草 威望 +1 - 2021-09-08
辉辉滔 威望 +1 我读书少,你不要骗我… 2021-09-07
叽叽喳喳呀 威望 +1 各个真奴十八力! 2021-09-07
特别声明:帖子及回帖全部内容为论坛用户自行上传发布并承担相应的法律责任,不代表本网站观点和立场,本网站仅提供信息存储服务。任何用户如认为页面上的特定内容涉及侵权,可通过页面底部侵权投诉指引向我们进行投诉。
本帖共有14条回复,请登录后查看。
  已有账号?点击登录
快速回复
限100 字节
如果您提交过一次失败了,可以用”恢复数据”来恢复帖子内容