• 6664阅读
  • 0回复

筑宅装饰【锦绣之城】原木家具—简约现代风 [复制链接]

上一主题 下一主题
 
发帖
260
奖学金
486
威望
1144
微信分享到朋友圈 只看楼主 倒序阅读 腔主  发表于: 2021-10-11
马上注册,结交更多好友,享用更多功能,让你轻松玩转义乌十八腔,更多精彩评论请登录后查看。
  已有账号?点击登录
关闭
本案是一套原木家具—简约现代风格装修案例,
筑宅首席设计师完成

现代风格的家具设计普遍比较简单,
随着时尚和潮流的变化,
赋予家具也更多的简单理念。
现代简约风格的原木家具组合为主,
讲求的是家具的作用利用,
为生活带来了更多便捷体验。


个人介绍:
徐浩茗老师从业已有7年。
中国建筑装饰协会会员
中国21世纪青年居家建筑设计奖

设计理念:
设计源于生活,细节成就品质


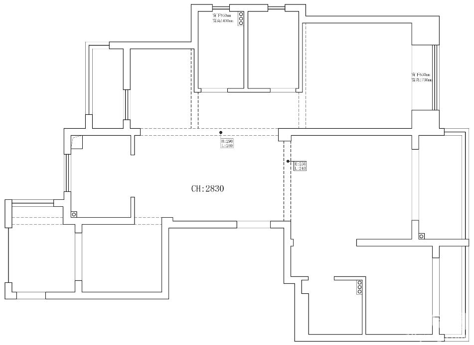
原始平面图


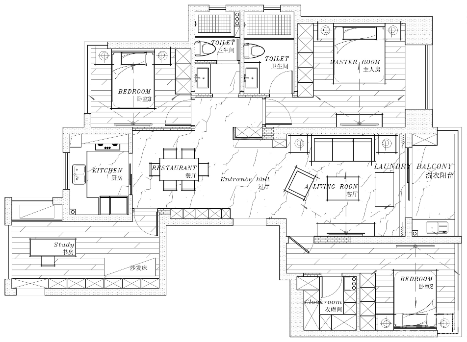
平面布置图




























3条评分威望+3
草莓皇后 威望 +1 - 2021-10-13
bignew 威望 +1 - 2021-10-11
不悲、不喜 威望 +1 - 2021-10-11
特别声明:帖子及回帖全部内容为论坛用户自行上传发布并承担相应的法律责任,不代表本网站观点和立场,本网站仅提供信息存储服务。任何用户如认为页面上的特定内容涉及侵权,可通过页面底部侵权投诉指引向我们进行投诉。
本帖共有0条回复,请登录后查看。
  已有账号?点击登录
快速回复
限100 字节
如果您在写长篇帖子又不马上发表,建议存为草稿