• 13591阅读
  • 9回复

[义乌故事]义乌规划公示公布!新的高层集聚区工程来了!涉及3个村! [复制链接]

上一主题 下一主题
 

发帖
1247
奖学金
323
威望
2348
微信分享到朋友圈 图酷模式 只看楼主 倒序阅读 腔主  发表于: 2021-11-02
马上注册,结交更多好友,享用更多功能,让你轻松玩转义乌十八腔,更多精彩评论请登录后查看。
  已有账号?点击登录
关闭
  前几日
义乌市政府信息公开平台
更新了一则规划公示
一起来看看


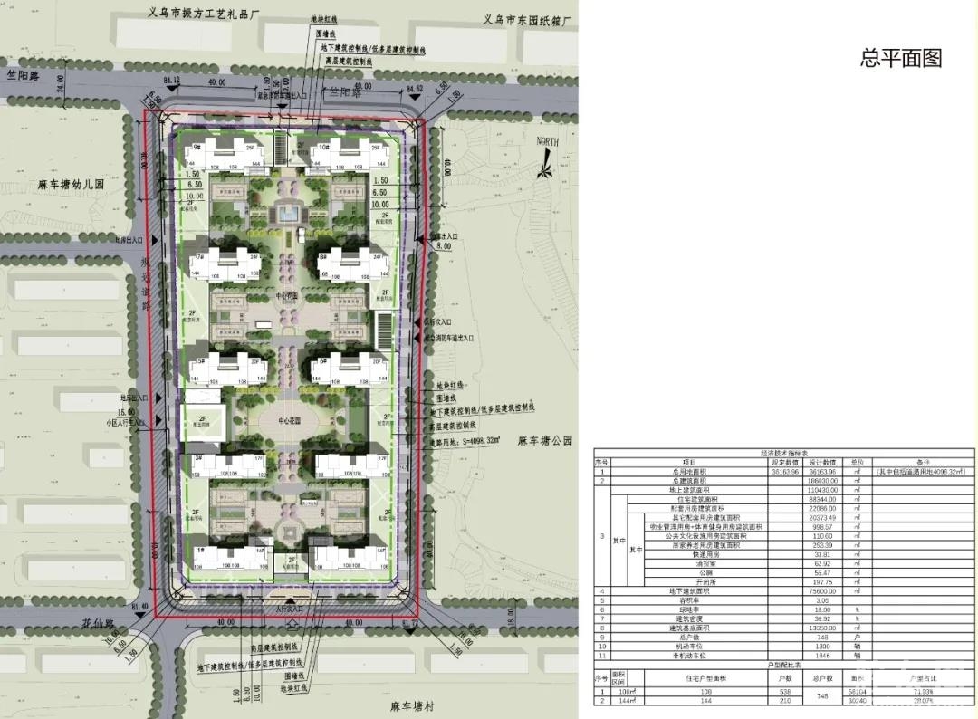
廿三里街道麻车塘、陈陀、光耀镜村高层集聚区工程
申请人廿三里街道麻车塘村股份经济合作社、陈陀村股份经济合作社、光耀镜村股份经济合作社向本局提出申请,要求审核廿三里街道麻车塘、陈陀和光耀镜村高层集聚区规划建筑设计方案。本项目位于廿三里街道竺阳路南侧、花仙路北侧,用地面积为32065.64平方米,用地性质为居住用地。申请人已委托设计单位按规划条件、相关规定、设计规范等编制规划设计方案,并经廿三里街道初步审查同意。根据《城乡规划法》《行政许可法》及相关规定要求,现对该项目的规划方案予以公示。公示期为2021年10月29日至2021年11月17日,公示地点为项目现场和义乌市自然资源和规划局网站。

如本行政许可直接涉及公民(法人之间重大利益关系的,利害关系人依法享有陈述、申辩及申请听证等权利。请于2021年11月17日前持利害关系存在的材料及本人身份信息(或法人身份信息,向义乌市自然资源和规划局申报。逾期不申报的视为放弃。

地址:宾王路366号1011办公室
电话:0579-85580031
廿三里街道:0579-8533116
(来源:义乌市人民政府公开专栏
这里有你们村吗?哈哈,来看看。

38条评分威望+38
懒得吃 威望 +1 - 2021-11-05
ywrate 威望 +1 - 2021-11-05
萌萌萌萌哒萌萌 威望 +1 - 2021-11-04
风一样单纯 威望 +1 - 2021-11-04
糖粿钕孜 威望 +1 - 2021-11-03
卖房子的小哥哥 威望 +1 - 2021-11-03
金氏义乌侬 威望 +1 - 2021-11-03
咱村的希望 威望 +1 - 2021-11-03
~乌伤大雅~ 威望 +1 - 2021-11-03
普明本和 威望 +1 - 2021-11-03
特别声明:帖子及回帖全部内容为论坛用户自行上传发布并承担相应的法律责任,不代表本网站观点和立场,本网站仅提供信息存储服务。任何用户如认为页面上的特定内容涉及侵权,可通过页面底部侵权投诉指引向我们进行投诉。
本帖共有9条回复,请登录后查看。
  已有账号?点击登录
快速回复
限100 字节
批量上传需要先选择文件,再选择上传