• 6715阅读
  • 0回复

筑宅装饰【凌云八区】中式简约风格 [复制链接]

上一主题 下一主题
 
发帖
260
奖学金
486
威望
1144
微信分享到朋友圈 只看楼主 倒序阅读 腔主  发表于: 2021-11-26
马上注册,结交更多好友,享用更多功能,让你轻松玩转义乌十八腔,更多精彩评论请登录后查看。
  已有账号?点击登录
关闭
中式简约风格整体兼有传统中式风格和现代简约风格之间,不会有中式那种沉闷,也不会有简约那种飘逸。沉稳大方是,不奢华,又不失品味。每一个房间,甚至在每一个角落都在简单的中式元素运用中沉淀出中国传统文化的魅力。




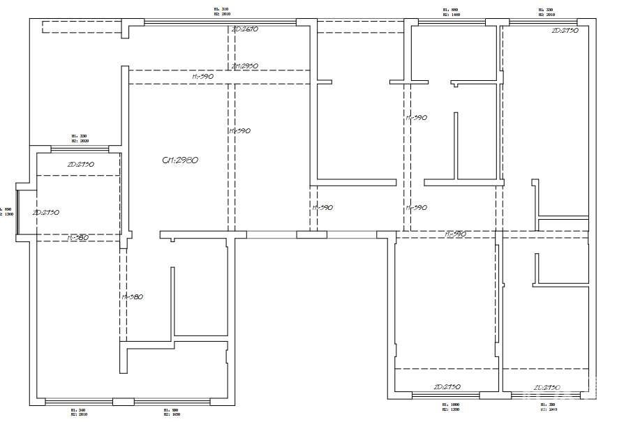
原始平面图


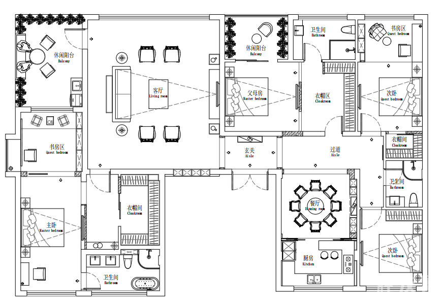
平面效果图

































3条评分威望+3
草莓皇后 威望 +1 - 2021-12-02
不悲、不喜 威望 +1 - 2021-11-26
康大腿 威望 +1 - 2021-11-26
特别声明:帖子及回帖全部内容为论坛用户自行上传发布并承担相应的法律责任,不代表本网站观点和立场,本网站仅提供信息存储服务。任何用户如认为页面上的特定内容涉及侵权,可通过页面底部侵权投诉指引向我们进行投诉。
本帖共有0条回复,请登录后查看。
  已有账号?点击登录
快速回复
限100 字节
如果您提交过一次失败了,可以用”恢复数据”来恢复帖子内容