• 4600阅读
  • 15回复

[义乌楼市]32.2亿拿地,21栋高层946套住宅,北苑新楼盘规划公示 [复制链接]

上一主题 下一主题
离线网站十五
 

发帖
8440
奖学金
12021
威望
65054
微信分享到朋友圈 图酷模式 只看楼主 倒序阅读 腔主  发表于: 2021-12-03
马上注册,结交更多好友,享用更多功能,让你轻松玩转义乌十八腔,更多精彩评论请登录后查看。
  已有账号?点击登录
关闭

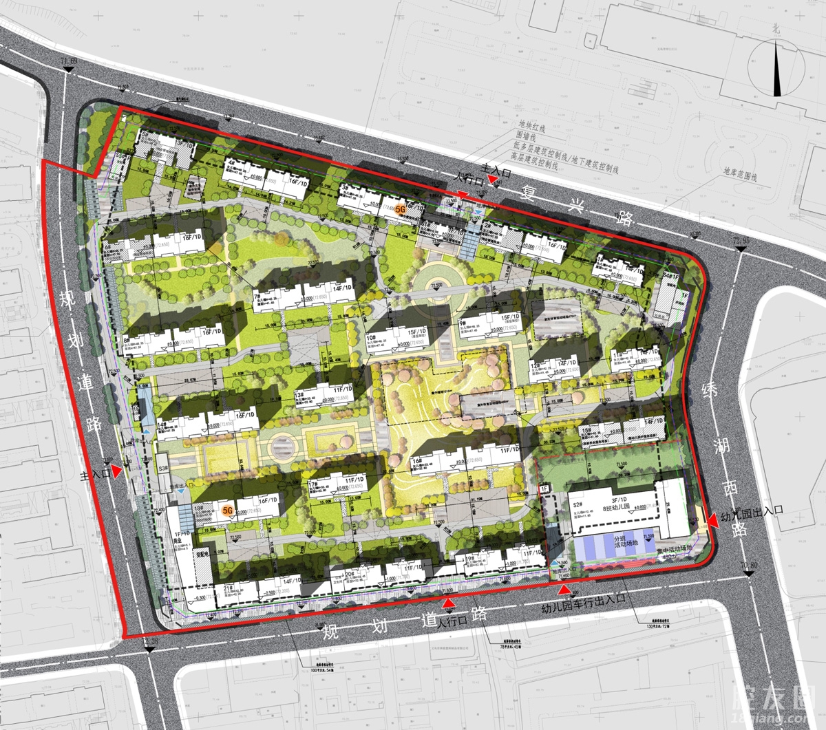
12月2日,北苑街道前洪有机更新地块一规划方案进行了公示。申请人已委托设计单位按规划条件、相关规定、设计规范等编制规划设计方案,并经北苑街道初步审查同意。

根据相关规定要求,对该项目规划方案予以公示,公示期为2021年12月2日至2021年12月11日。

本项目位于北苑街道复兴路与绣湖西路交叉口西南侧,用地性质为商业、二类居住、教育科研、城市道路用地,地块由义乌武鸿置业有限公司开发建设。




地块规划用地面积65215.85㎡,总建筑面积176177.90㎡,其中地上建筑面积127170.90㎡,地下建筑面积49007㎡,容积率1.95,绿地率30%,建筑密度20.2%。

规划住宅总户数为946户,宅为21栋其中5栋为11层,1栋为13层,5栋为14层,3栋为15层,7栋为16层。机动车停车位1249辆,非机动车停车位1761辆。

此外,规划的8班幼儿园位于项目东南角,地上建筑3层地下1层,包含分班活动场地、集中活动场地等。

住宅主入口位于复兴路与项目西侧道路,并设有地库出入口。人行口位于复兴路与项目南侧道路。幼儿园出入口位于绣湖西路,项目南侧道路设有幼儿园车行出入口。1层商业主要沿项目西南角住宅底层设置。



8月2日,经过86轮竞价,武地以32.2亿元竞得该地块,成交楼面价25320.26元/㎡,溢价率29.8%,​投报配套用房面积4680平方米。


整理:义乌房子网
编辑:网站十五

加房小白微信
陪你畅谈义乌楼市、解决买房大小事


3条评分威望+3
胖子余 威望 +1 - 2021-12-19
用户559429121 威望 +1 - 2021-12-03
无情谷 威望 +1 - 2021-12-03
特别声明:帖子及回帖全部内容为论坛用户自行上传发布并承担相应的法律责任,不代表本网站观点和立场,本网站仅提供信息存储服务。任何用户如认为页面上的特定内容涉及侵权,可通过页面底部侵权投诉指引向我们进行投诉。
本帖共有15条回复,请登录后查看。
  已有账号?点击登录
快速回复
限100 字节
如果您提交过一次失败了,可以用”恢复数据”来恢复帖子内容