• 7925阅读
  • 43回复

[义乌楼市]规划24栋高层2826户住宅,义乌又一个集聚区项目规划公示 [复制链接]

上一主题 下一主题
离线网站十五
 

发帖
8440
奖学金
12021
威望
65054
微信分享到朋友圈 图酷模式 只看楼主 倒序阅读 腔主  发表于: 2021-12-07
马上注册,结交更多好友,享用更多功能,让你轻松玩转义乌十八腔,更多精彩评论请登录后查看。
  已有账号?点击登录
关闭

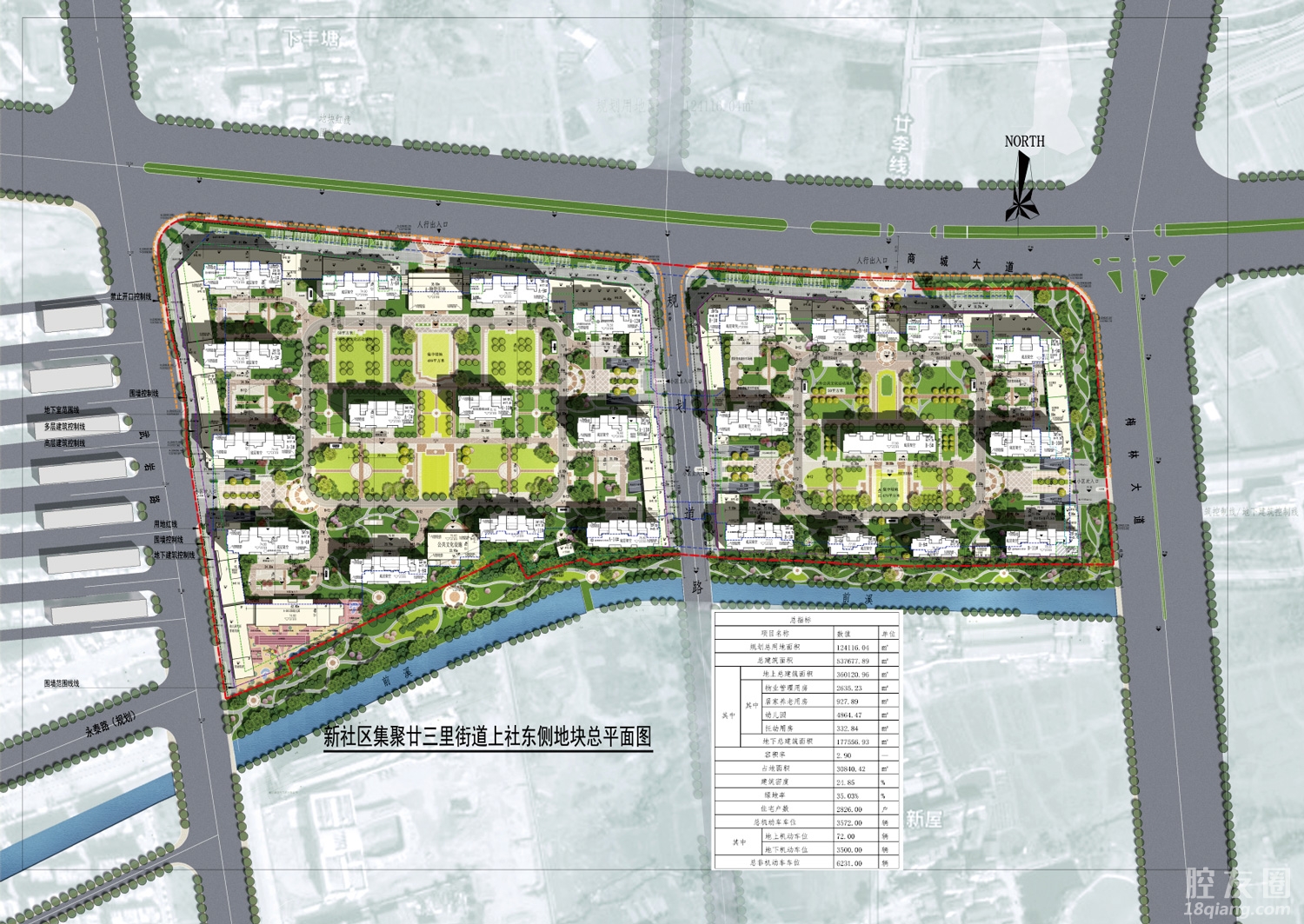
12月6日,新社区集聚廿三里上社东侧地块规划方案进行了公示。申请人已委托设计单位按规划条件、相关规定、设计规范等编制规划设计方案,并经廿三里街道初步审查同意。

根据相关规定要求,对该项目规划方案予以公示,公示期为2021年12月6日至2021年12月15日。

本项目位于廿三里街道武岩路与商城大道交叉口东南侧,用地性质为商业、居住、城市道路用地,地块由义乌市益城建设发展有限公司开发建设。



地块规划用地面积124116.04㎡,总建筑面积537677.89㎡,其中地上建筑面积360120.96㎡,地下建筑面积177556.93㎡,容积率2.9,绿地率35.03%。

规划住宅总户数为2826户,宅为24栋。机动车车位3572辆,其中地上机动车位72辆,地下机动车位3500辆,非机动车车位6231辆。

小区2个主入口位于地块中央规划道路的东西两侧,武岩路与梅林大道分别设有1个小区次入口,沿商城大道规划有2个人行出入口。



1月8日,义乌市益城建设发展有限公司以起价3.08亿元拿该地块,将全部用于安置本市城乡新社区集聚建设对象。


整理:义乌房子网
编辑:网站十五

加房小白微信
陪你畅谈义乌楼市、解决买房大小事


28条评分威望+28
fyx5225 威望 +1 - 2021-12-09
萌萌萌萌哒萌萌 威望 +1 - 2021-12-08
~乌伤大雅~ 威望 +1 - 2021-12-08
青春的心作纪念 威望 +1 - 2021-12-08
大爷的 威望 +1 - 2021-12-08
普明本和 威望 +1 - 2021-12-08
被狼诱惑的莲 威望 +1 - 2021-12-08
鸶红 威望 +1 - 2021-12-07
我不是好人。 威望 +1 - 2021-12-07
sunny_唐伯虎 威望 +1 - 2021-12-07
特别声明:帖子及回帖全部内容为论坛用户自行上传发布并承担相应的法律责任,不代表本网站观点和立场,本网站仅提供信息存储服务。任何用户如认为页面上的特定内容涉及侵权,可通过页面底部侵权投诉指引向我们进行投诉。
本帖共有43条回复,请登录后查看。
  已有账号?点击登录
快速回复
限100 字节
如果您提交过一次失败了,可以用”恢复数据”来恢复帖子内容