• 4599阅读
  • 17回复

[义乌楼市]廿三里街道东陈、西澄、活鱼塘、楼山塘集中安置区块新进展 [复制链接]

上一主题 下一主题
离线网站十五
 

发帖
8440
奖学金
12021
威望
65054
微信分享到朋友圈 图酷模式 只看楼主 倒序阅读 腔主  发表于: 2022-05-31
马上注册,结交更多好友,享用更多功能,让你轻松玩转义乌十八腔,更多精彩评论请登录后查看。
  已有账号?点击登录
关闭
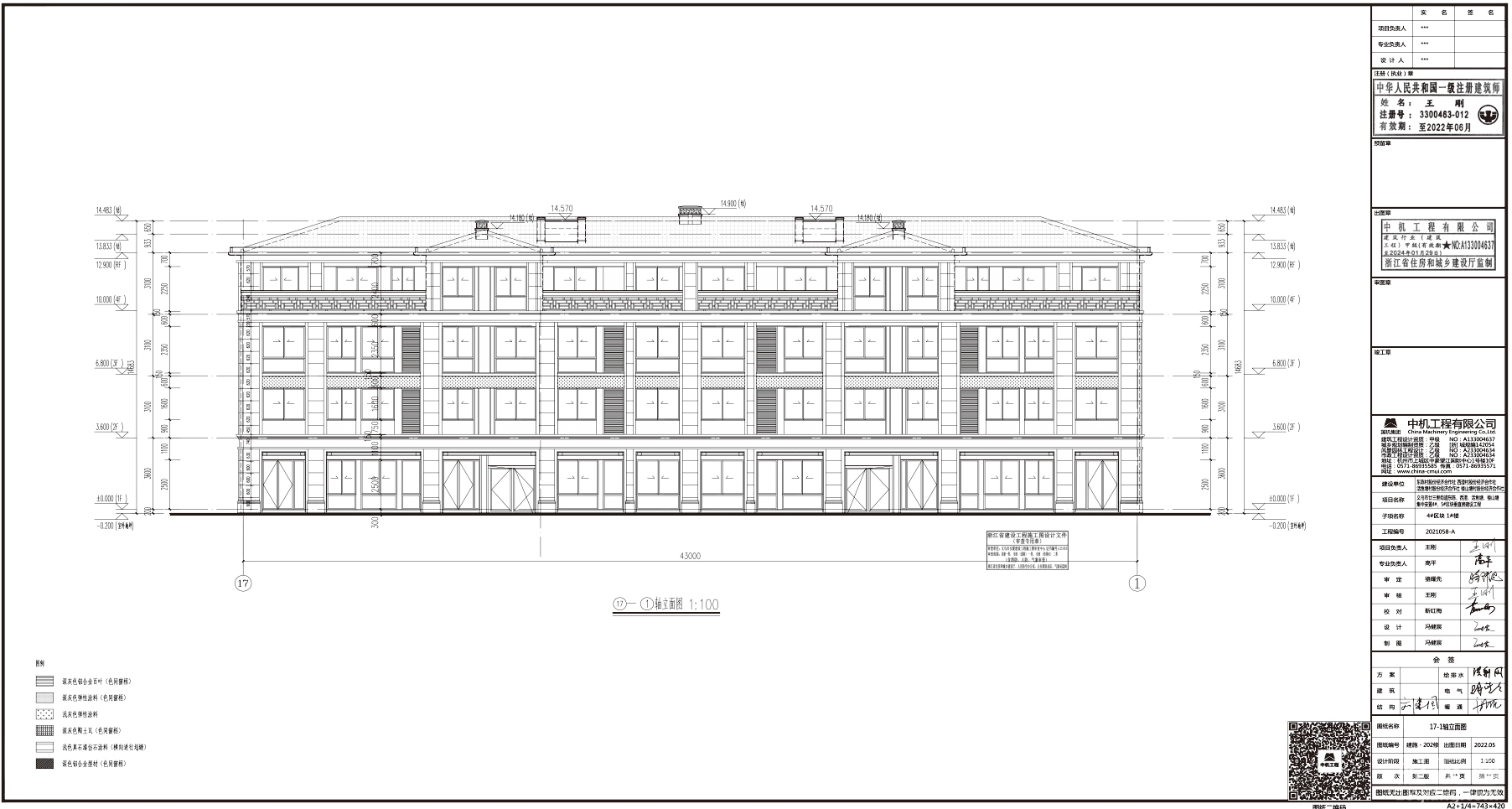
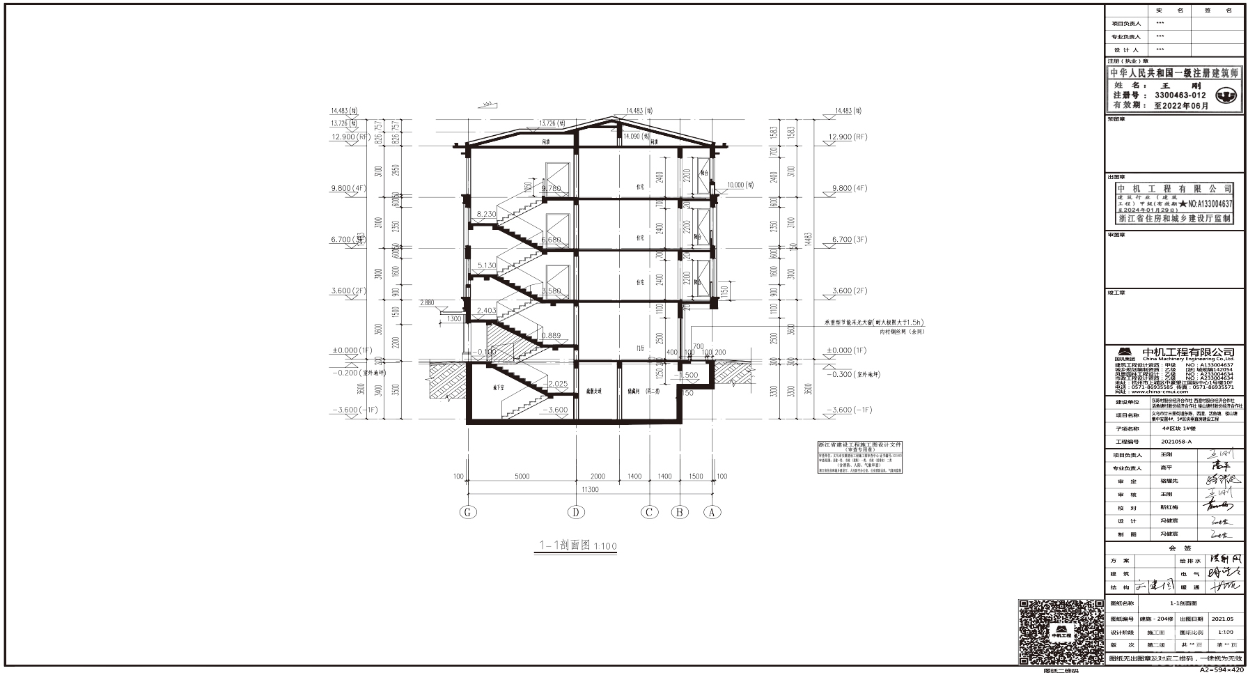
5月30日,义乌市自规局公示了廿三里街道东陈、西澄、活鱼塘、楼山塘集中安置区块(四号地块)建设工程规划告示牌。

请输入描述
请输入描述
请输入描述

廿三里街道东陈、西澄、活鱼塘、楼山塘集中安置区块规划用地面积为317297.90㎡,其中一号地块用地面积24850.83㎡,二号地块用地面积113868.48㎡,三号地块用地面积93044.99㎡,四号地块用地面积54391.90㎡,五号地块用地面积31141.70㎡。

总建筑面积718496.49㎡,地下建筑面积220810.49㎡,地上建筑面积497686㎡,其中一号地块地上建筑面积37829㎡。二号地块地上建筑面积169840㎡,三号地块地上建筑面积162911㎡,四号地块地上建筑面积80166㎡,五号地块地上建筑面积46940㎡。

建筑基底总面积106664.24㎡,其中一号地块建筑基底面积8510㎡,二号地块建筑基底面积42564㎡,三号地块建筑基底面积24798㎡,四号地块建筑基底面积19970.24㎡,五号地块建筑基底面积10822㎡。

容积率1.57,建筑密度33.62%,公共服务设施用地26987.09㎡。

请输入描述

四号地块规划用地面积54391.9㎡,总建筑面积99985.49㎡,地上建筑面积80166㎡,其中住宅建筑总面积77856。地下建筑面积19819.49㎡,建筑基底总面积19970.24㎡,其中住宅建筑基底面积18685.44㎡。容积率1.474,建筑密度36.72%。

五号地块规划用地面积31141.70㎡,总建筑面积58141㎡,地上建筑面积46940㎡,其中住宅建筑总面积46030。地下建筑面积11201㎡,建筑基底总面积10822㎡,其中住宅建筑基底面积10411㎡。容积率1.51,建筑密度34.75%。

请输入描述

2021年12月8日,廿三里街道举行了楼山塘、活鱼塘、西澄、东陈4个村集中安置4、5号区块垂直房工程的集中开工仪式,标志着廿三里街道农村有机更新集中安置项目正式拉开序幕。

廿三里街道农村有机更新集中安置4、5号区块项目,位于廿三里街道大通路和华盛路交叉口南侧,用地面积约为8.5万平方米,建筑面积15.6万平方米,包括76栋垂直房及其他附属用房,房屋建设投资约为2.5亿元。

请输入描述

整理:义乌房子网
编辑:网站十五


加房小白微信
陪你畅谈义乌楼市



1条评分威望+1
特别声明:帖子及回帖全部内容为论坛用户自行上传发布并承担相应的法律责任,不代表本网站观点和立场,本网站仅提供信息存储服务。任何用户如认为页面上的特定内容涉及侵权,可通过页面底部侵权投诉指引向我们进行投诉。
本帖共有17条回复,请登录后查看。
  已有账号?点击登录
快速回复
限100 字节
如果您提交过一次失败了,可以用”恢复数据”来恢复帖子内容