• 14695阅读
  • 9回复

[义乌故事]建安费6亿!义乌这个村要建高层了! [复制链接]

上一主题 下一主题
 
发帖
721
奖学金
1422
威望
36083
微信分享到朋友圈 图酷模式 只看楼主 倒序阅读 腔主  发表于: 2022-09-26
马上注册,结交更多好友,享用更多功能,让你轻松玩转义乌十八腔,更多精彩评论请登录后查看。
  已有账号?点击登录
关闭
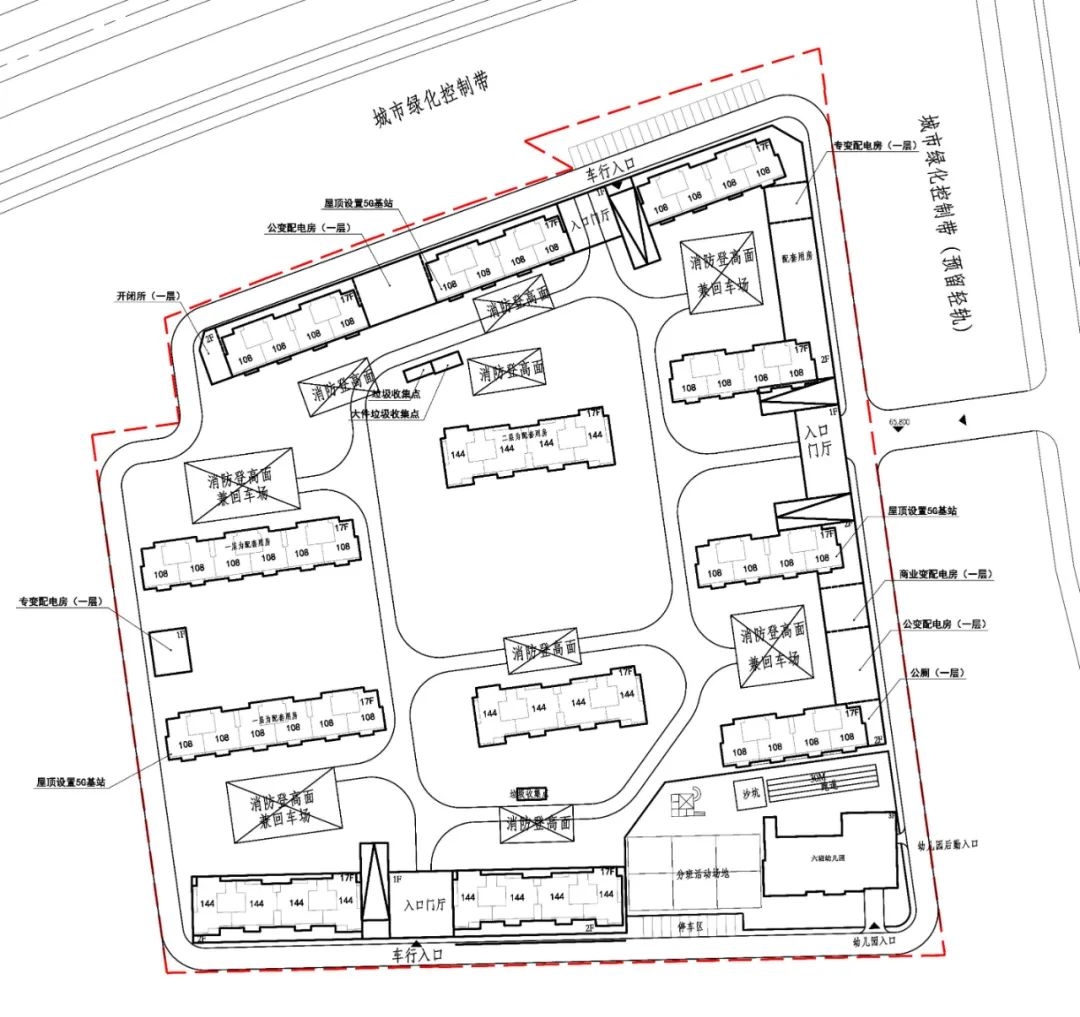
9月22日,稠江街道官清畈村旧村改造高层项目新建建筑物1#-12#住宅楼工程代建招标文件公示。


根据招标文件,稠江街道官清畈村旧村改造高层项目新建建筑物1#-12#住宅楼工程代建已由相关单位批准同意建设,招标人为义乌市稠江街道官清畈村股份经济合作社,建设资金来自自筹。


项目具体规划请以实施为准

项目建设地点位于稠江街道官清畈村,规划总用地面积为43700.09平方米,建筑占地面积为11391.66平方米,总建筑面积为165150平方米,地上高层面积为95950平方米,地上配套面积为12100平方米,地上幼儿园面积为2100平方米,地下面积55000平方米,其中地上17层(含2层裙房),地下室2层建安工程费暂定为60000万元
项目计划服务期暂定1200日历天,具体为项目代建合同签约之日起至项目竣工验收通过之日后满贰年保修期止。项目建设内容包括土石方、基坑支护、建筑、安装、市政、绿化、自来水、天然气等。

54条评分威望+54
特别声明:帖子及回帖全部内容为论坛用户自行上传发布并承担相应的法律责任,不代表本网站观点和立场,本网站仅提供信息存储服务。任何用户如认为页面上的特定内容涉及侵权,可通过页面底部侵权投诉指引向我们进行投诉。
本帖共有9条回复,请登录后查看。
  已有账号?点击登录
快速回复
限100 字节
如果您在写长篇帖子又不马上发表,建议存为草稿