• 3541阅读
  • 13回复

[义乌楼市]7.2亿拿地,大陈小镇健康养生社区第二期项目规划公示 [复制链接]

上一主题 下一主题
离线网站十五
 

发帖
8440
奖学金
12021
威望
65054
微信分享到朋友圈 图酷模式 只看楼主 倒序阅读 腔主  发表于: 2021-09-01
马上注册,结交更多好友,享用更多功能,让你轻松玩转义乌十八腔,更多精彩评论请登录后查看。
  已有账号?点击登录
关闭


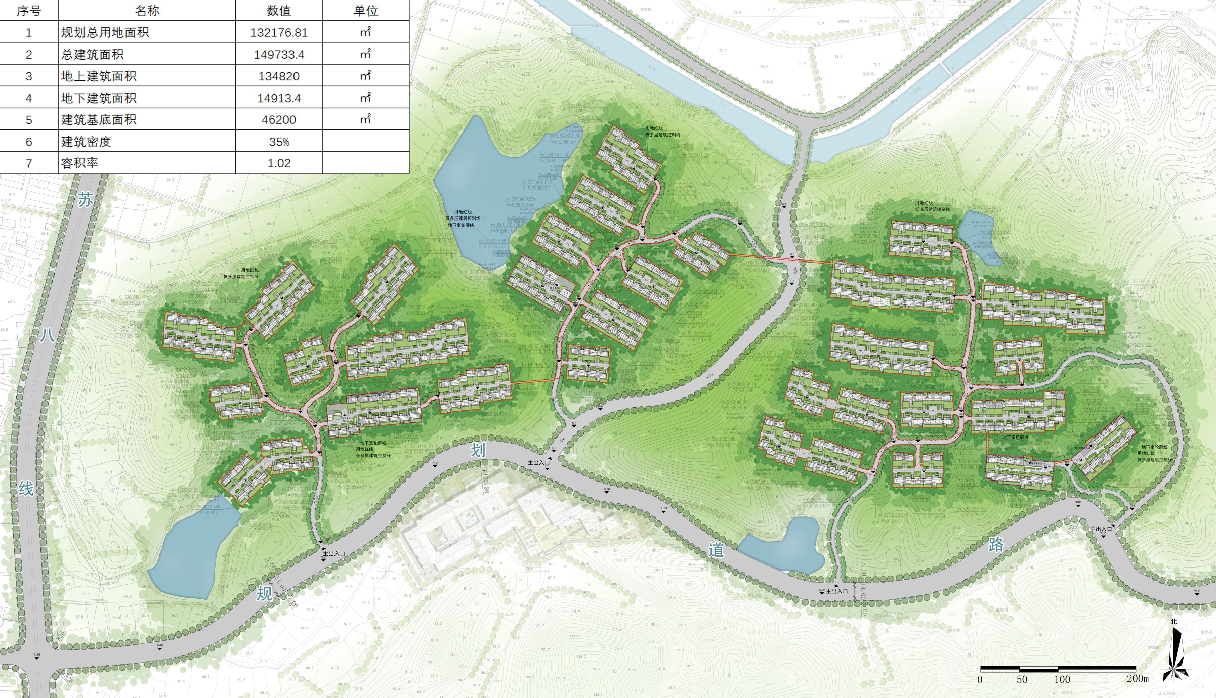
8月31日,大陈小镇健康养生社区第二期项目规划方案进行了公示。申请人已委托设计单位按规划条件、相关规定、设计规范等编制规划设计方案,并经大陈镇道初步审查同意。

根据相关规定要求,对该项目规划方案予以公示,公示期为2021年8月31日至2021年9月9日。

本项目位于大陈镇,苏八线以东、阳光大道以西、大陈大道以北,用地性质为一类居住用地,地块由义乌蓝城建设有限公司开发建设。



地块规划用地面积132176.81㎡,总建筑面积149733.4㎡,其中地上建筑面积134820㎡,地下建筑面积14913.4㎡,容积率1.02,建筑密度35%。



2020年12月14日,大陈小镇健康养生社区第二期地块以72037万元的价格成交,义乌蓝城建设有限公司底价摘牌。

根据规划条件,地块建筑形式为低层,总平面布置应综合考虑周边环境、路网结构、公建与住宅布局、群体组合、地下空间、绿地系统及空间环境等内在联系,构成一个完善、相对独立的有机整体。

地块不得设置别墅类建筑,建筑风格采用中式,建筑屋顶形式为坡屋顶,起坡高度不大于7.5米,建筑南北向间距不得小于10米。住宅最小套型总建筑面积不得小于120平方米,住宅应全装修交付。

出让地块大致位置


整理:义乌房子网
编辑:网站十五

加房小白微信
陪你畅谈义乌楼市、解决买房大小事
2条评分威望+2
yanghhhhhhhh 威望 +1 - 2021-09-04
a654349826 威望 +1 - 2021-09-01
特别声明:帖子及回帖全部内容为论坛用户自行上传发布并承担相应的法律责任,不代表本网站观点和立场,本网站仅提供信息存储服务。任何用户如认为页面上的特定内容涉及侵权,可通过页面底部侵权投诉指引向我们进行投诉。
本帖共有13条回复,请登录后查看。
  已有账号?点击登录
快速回复
限100 字节
如果您提交过一次失败了,可以用”恢复数据”来恢复帖子内容