• 5815阅读
  • 47回复

[义乌楼市]34栋高层3716户住宅!义乌又有大型住区来了 [复制链接]

上一主题 下一主题
离线网站十五
 

发帖
8440
奖学金
12021
威望
65054
微信分享到朋友圈 图酷模式 只看楼主 倒序阅读 腔主  发表于: 2022-05-12
马上注册,结交更多好友,享用更多功能,让你轻松玩转义乌十八腔,更多精彩评论请登录后查看。
  已有账号?点击登录
关闭
5月11日,新社区集聚江东街道毛店二期两宗地块规划方案进行了公示。

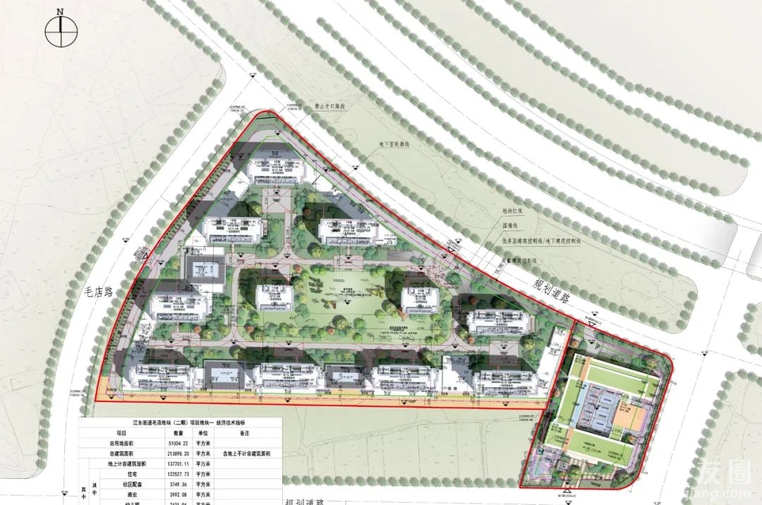
新社区集聚江东街道毛店二期地块一

根据相关规定要求,对该项目规划方案予以公示,公示期为2022年5月12日至2022年5月23日。

本项目位于江东街道,环城南路与南洲路交叉口西南侧,用地面积51004.22㎡,用地性质为商业、二类城镇住宅、幼儿园用地。地块由义乌市佛堂小城市开发建设有限公司开发建设。


地块规划用地面积51004.22㎡,总建筑面积213898.20㎡,其中地上建筑面积137701.11㎡,地下建筑面积73201.87㎡,容积率2.7,绿地率30%,建筑密度28.13%。

项目地块规划了11幢高层,总户数1166户,机动车车位数1522个,非机动车车位数2505个。




新社区集聚江东街道毛店二期地块二

根据相关规定要求,对该项目规划方案予以公示,公示期为2022年5月12日至2022年5月23日。

本项目位于江东街道,环城南路与南洲路交叉口东南侧,用地面积96819.67㎡,用地性质为商业、二类城镇住宅用地。地块由义乌市佛堂小城市开发建设有限公司开发建设。


地块规划用地面积96819.67㎡,总建筑面积415348.00㎡,其中地上建筑面积280776.00㎡,地下建筑面积134572.00㎡,容积率2.9,绿地率30%,建筑密度24.33%。

项目地块规划了23幢高层,总户数2550户,机动车车位数3171个,非机动车车位数4760个。


2021年10月18日,新社区集聚江东街道毛店地块(二期)项目地块一成功出让,义乌市佛堂小城市开发建设有限公司以1.10亿元竞得该地块。

2022年3月23日,新社区集聚江东街道毛店地块(二期)项目地块二成功出让,义乌市佛堂小城市开发建设有限公司以2.4亿元竞得。



整理:义乌房子网
编辑:网站十五

加房小白微信
陪你畅谈义乌楼市、解决买房大小事



10条评分威望+10
特别声明:帖子及回帖全部内容为论坛用户自行上传发布并承担相应的法律责任,不代表本网站观点和立场,本网站仅提供信息存储服务。任何用户如认为页面上的特定内容涉及侵权,可通过页面底部侵权投诉指引向我们进行投诉。
本帖共有47条回复,请登录后查看。
  已有账号?点击登录
快速回复
限100 字节
如果您提交过一次失败了,可以用”恢复数据”来恢复帖子内容