• 6722阅读
  • 21回复

[义乌楼市]城西街道六一村有机更新地块新进展 [复制链接]

上一主题 下一主题
离线网站十五
 

发帖
8440
奖学金
12021
威望
65054
微信分享到朋友圈 图酷模式 只看楼主 倒序阅读 腔主  发表于: 2022-05-25
马上注册,结交更多好友,享用更多功能,让你轻松玩转义乌十八腔,更多精彩评论请登录后查看。
  已有账号?点击登录
关闭
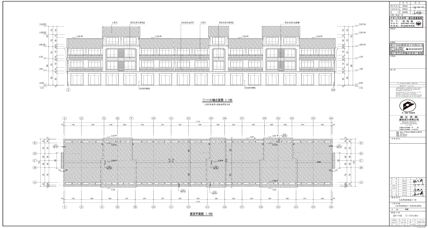
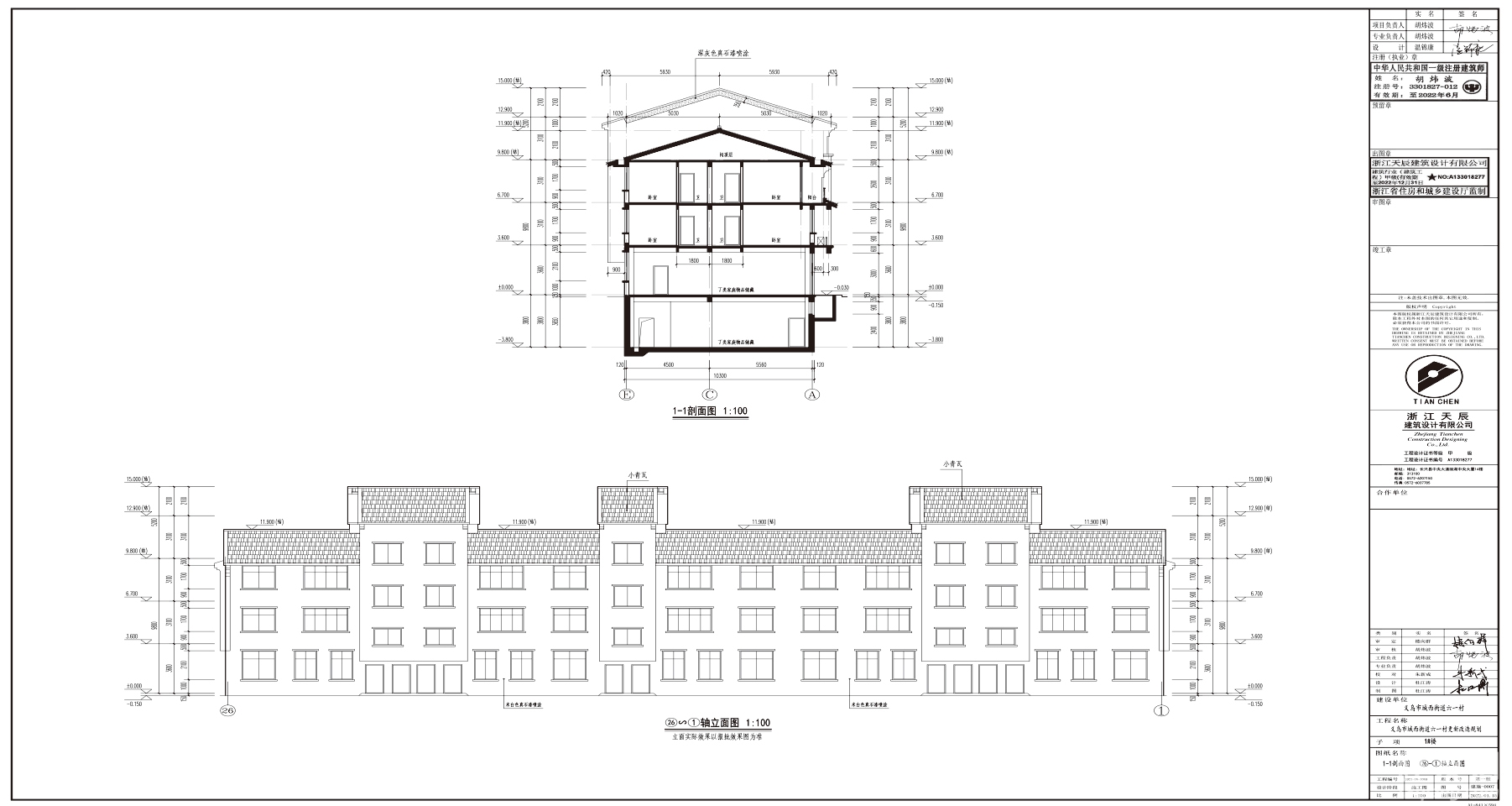
5月24日,义乌市自规局公示了义乌城西街道六一村有机更新地块建设工程规划告示牌。







据悉,六一村位于城西街道东河社区,近邻铁路义乌西站、义乌粮食市场、义乌城西电子商务科技园等,区位相对优越,周边区块七一村早些年己完成旧改,六一村是城西街道施行《义乌市农村有机更新政策实施办法》(84.5号新政)后的第二个试点村。

整理:义乌房子网
编辑:网站十五


加房小白微信
陪你畅谈义乌楼市

29条评分威望+29
特别声明:帖子及回帖全部内容为论坛用户自行上传发布并承担相应的法律责任,不代表本网站观点和立场,本网站仅提供信息存储服务。任何用户如认为页面上的特定内容涉及侵权,可通过页面底部侵权投诉指引向我们进行投诉。
本帖共有21条回复,请登录后查看。
  已有账号?点击登录
快速回复
限100 字节
如果您提交过一次失败了,可以用”恢复数据”来恢复帖子内容