• 2954阅读
  • 13回复

[城建规划]征求公众意见!义乌又一地块控规调整 [复制链接]

上一主题 下一主题
离线网站十五
 

发帖
8440
奖学金
12021
威望
65054
微信分享到朋友圈 图酷模式 只看楼主 倒序阅读 腔主  发表于: 2022-08-24
马上注册,结交更多好友,享用更多功能,让你轻松玩转义乌十八腔,更多精彩评论请登录后查看。
  已有账号?点击登录
关闭
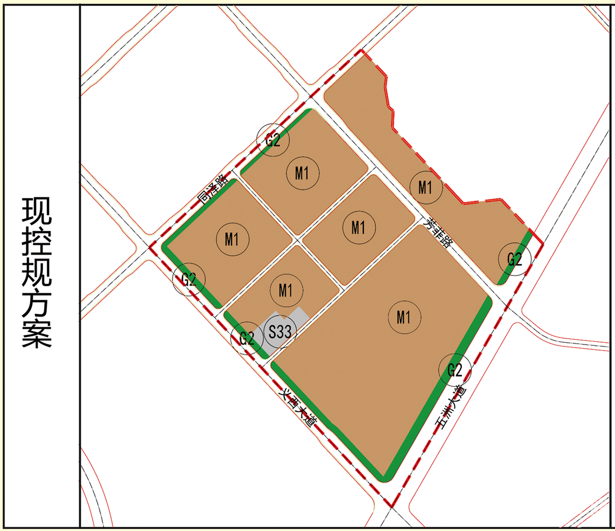
8月22日,义乌市自然资源和规划局对义乌经济技术开发区晶澳区块控规局部调整方案进行公示。




为加快经济技术开发区晶澳区块建设,现组织编制《义乌经济技术开发区晶澳区块控规局部调整方案》。根据相关法律法规的要求,现将控规草案予以公示,征求公众意见。

公示时间30天,自2022年8月22日起至2022年9月20日止。






整理:义乌房子网
编辑:网站十五


加房小白微信
陪你畅谈义乌楼市

2条评分威望+2
特别声明:帖子及回帖全部内容为论坛用户自行上传发布并承担相应的法律责任,不代表本网站观点和立场,本网站仅提供信息存储服务。任何用户如认为页面上的特定内容涉及侵权,可通过页面底部侵权投诉指引向我们进行投诉。
本帖共有13条回复,请登录后查看。
  已有账号?点击登录
快速回复
限100 字节
如果您提交过一次失败了,可以用”恢复数据”来恢复帖子内容